Administrator | Středa, 10. červen 2015 |
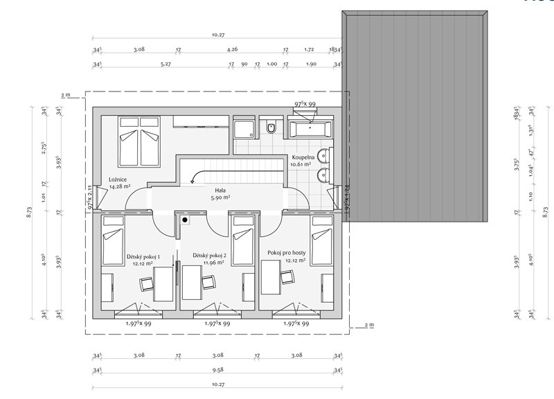
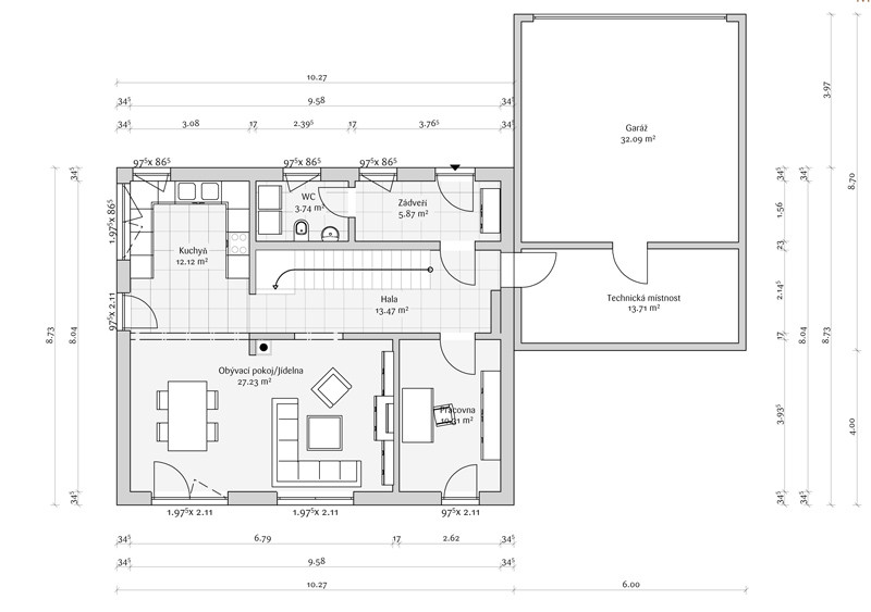
Přesně podle tohoto mota společnost FischerHaus, bavorský výrobce a dodavatel kvalitních, vysoce energeticky úsporných rodinných domů v pasivním standardu, s více jak 50 letou tradici a zkušenostmi z 12 500 realizovaných staveb – vyprojektovala návrhy rodinného domu GENERATION Family s vynikajícím poměrem užitné plochy a ceny – jen za 16 500 Kč/měsíčně*) včetně nákladů na elektřinu, vytápění a ohřev vody.
GENERATION Family je realizován v konceptu FischerHaus +PLUS, s nulovým nákladem na cenu energií, jehož základem je dokonale vzduchotěsný a tepelně izolovaný venkovní plášť domu od FischerHaus.
![]()
Dům je dovybaven špičkovou technologií – tepelným čerpadlem, kontrolovaným větráním s rekuperací, fotovoltaickým zařízením, systémem inteligentní domácnosti, zdravotechnikou, keramickými obklady, dlažbou a podlahovou krytinou.
Vlastní vyrobená energie z obnovitelných zdrojů je využívána k minimalizování provozních nákladů a k přímému refinancování pořizovací ceny.
*Modelový příklad 100% financování (2,99 % efektivní úrok + 1% splátka jistiny) realizace rodinného domu GENERATION Family od horní hrany základové desky, za podmínky patřičné bonity a vlastnictví vhodného stavebního pozemku, výstavby základové desky z vlastních zdrojů. Zobrazená cena je orientační a může se v závislosti na bonitě zájemce a poloze pozemku lišit. Nejedná se o návrh smlouvy ani o reklamu.













Vytvořeno v xart.cz