Redakce | Pondělí, 30. prosinec 2019 |
V letošní soutěži Holzbaupreis Steiermark ocenila porota mimo jiné přístavbu k původnímu zděnému domu z 20. let minulého století, který současný majitel zdědil po prarodičích. Vzhledem k citové vazbě se rozhodl pro maximální zachování vzhledu starého domu, který pouze doplnil o moderní, dřevěnou přístavbu.
Fasáda nebyla dodatečně tepelně izolována a původní dřevěná špaletová okna prošla pouze repasí s izolací vnitřního křídla.

Aby dům odpovídal nárokům mladé rodiny, byla k němu přistavěna dřevostavba sloupkové konstrukce opláštěná modřínovými lamelami, které byly použity i jako finální vrstva střešního pláště.

"Přístavba rozšířila dům o obytný prostor s kuchyní v přízemí a velkorysé patro s ložnicí, šatnou a koupelnou."

obr. Schody, které jsou použity v hlavním společném prostoru dokonale oddělují obývací prostor od kuchyně.

obr.: Se zajímavým řešením sezení byly v dřevěné přístavbě vytvořeny dřevěné lavice, které jsou umístěny hned vedle schodů.

obr.: Ložnice v patře je propojena s koupelnou a malou terasou, tím vzniká prostor pro relaxaci a odpočinek.
Mohlo by vás zajímat:

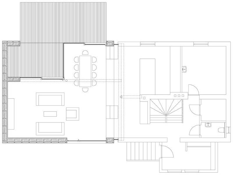
obr.: Půdorys 1. nadzemního podlaží domu.

obr.: Půdorys 2. nadzemního podlaží domu.
- Foto: BP Steiermark
- Návrh: IG Bilek + Krischner GmbH
- Připravil: Martin Klíma
Redakčně upraveno pro web













Vytvořeno v xart.cz