Lucie Němcová | Úterý, 06. duben 2021 |
Chata ve tvaru A je místem pro spočinutí v lůně lesa. Pozoruje, vidí a vnímá, nicméně nekonkuruje. Umožňuje plynutí okolního života bez invazivních zásahů. Splývá a tepe v rytmu lesního organismu. Podívejte se pozoruhodnou rekonstrukci, kterou původní chata prošla.
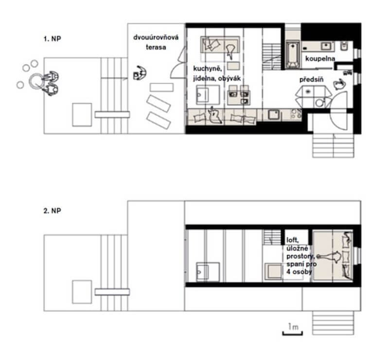
Rekonstrukce chaty k rekreaci i k trvalému bydlení
Původní chata postavená v 70. letech dostala novou šanci poskytovat rekreaci nebo dokonce trvalé bydlení se všemi dnešními nároky a požadavky. Pro její novou verzi nebyla nutná žádná změna objemu, výzvou ale bylo integrovat plný komfort na tak malém půdorysu.
Během rekonstrukce byly zachovány všechny nosné prvky – krokve, kleštiny, sloup i vazné trámy. Stejně tak byla ponechána střešní krytina a repasováno schodiště do loftu. V úplně nezměněné podobě zůstal sklep. Prostor je vytápěn akumulačními kamny a elektrickým podlahovým topením. Útočiště chata poskytuje celý rok a její potenciál je tak plně využíván.
obr.: Jedna z podkrovních ložnic byla zrušena, aby umožnila otevřít impozantní výhled ze společenské části a nově vzniklého loftu. Foto: Miro Pochyba
obr.: Interiéru dominuje obklad z OSB desek, vestavěné skříně a dubový masiv ve formě parket a pracovní desky. Foto: Miro Pochyba

Foto: Miro Pochyba
Co je to loft?
Loft znamená v překladu půdu, podkroví nebo horní patro obchodního domu. Lofty představují způsob ateliérového bydlení a nejčastěji vznikají přestavbou nebo dostavbou nevyužívaných objektů. Jako loftové bydlení se někdy označují také určité projekty v půdních vestavbách. Vždy se jedná o velkoprostorovou, téměř nečleněnou bytovou jednotku, vyznačující se neobvyklou výškou stropů.
obr.: Velké množství světla, průhledy a pocit vzdušnosti dělají z malého příbytku velký. Prostor je vytápěn akumulačními kamny a elektrickým podlahovým topením. Foto: Miro Pochyba
obr.: Původní terasu nahradila nová multifunkční v totožném místě. Foto: Miro Pochyba
Terasa probíhá ve dvou úrovních a zahrnuje:
- dětské pískoviště,
- skluzavku,
- lezeckou stěnu,
- dostatek místa na oddych v přírodě.
obr.: Otevření prostoru, důmyslné zónování a praktické detaily – základní klíče, kterými dosáhneme komfortu, krásy i účelnosti. Foto: Miro Pochyba
obr.: Nejvýraznějším novým prvkem se stala hliníková fasáda se zelenými dveřmi a terasa z červeného smrku. Foto: Miro Pochyba.
Foto: Miro Pochyba
Technické parametry
- Užitná plocha: 64 m²
- Zastavěná plocha: 54 m²
- Plocha pozemku: 426 m²
- Obestavěný prostor: 165 m3
- Projekt: Y100 ATELIÉR, WWW.Y100.SK
- Foto: Miro Pochyba


Projekt dřevěné chaty na klíč
Uplynulé týdny nám ukázaly, jak moc je pro náš život důležitá příroda, která dokáže ulevit našemu tělu i mysli. Nový projekt společnosti LUCERN dřevostavby je určen právě pro maximální propojení bydlení s přírodou. Nabídku rozšiřuje chata, která moderním způsobem interpretuje archetypální tvar těchto staveb a přidává všechny výhody moderního bydlení.
Celoprosklený štít dává zapomenout na hranici mezi exteriérem a interiérem, dojem vzdušnosti podtrhuje i obývací pokoj, který se přes galerii v patře otevírá až do krovu. Chata uspokojí designově náročnější klientelu a nabídne ubytování až šesti osobám ve třech podlažních úrovních. O úložné prostory nebude nouze, neboť se dají využít prostory v šikminách a pod schody. Chata se hodí do lesa, na pahorky s krásným výhledem, popřípadě k vodě.
Tuto dřevěnou chatu na klíč s užitnou plochou o velikosti 79,00 m² je možné postavit za 2 190 000 Kč včetně základové desky.

Vizualizace: LUCERN dřevostavby s.r.o.

Vizualizace: LUCERN dřevostavby s.r.o.











Vytvořeno v xart.cz