Markéta Kristová | Čtvrtek, 10. červen 2021 |
Dřevostavba pro bezdětné seniory? Startovací bydlení pro mladý pár? Velkorysý dům pro single? To všechno může být bungalov Jubileum Profi 81 z portfolia menších rodinných domů firmy ATRIUM.
Bungalov, proč je tak oblíbený?
Bungalov, který se řadí mezi nejoblíbenější obytné stavby je typický především svým pravidelným (až čtvercovým) půdorysem a celkovou lehkostí stavby. Většinou je to jednopodlažní dům, zpravidla bez obytného podkroví, do kterého se vstupuje přes verandu. Bungalovy se nejčastěji staví na předměstí nebo příměstkých částech ale není to pravidlem. A čím se bungalovy staly tak oblíbené?
- Dokonalé propojení prostoru.
- Možnost příjemného a komfortního bydlení pro rodiny s dětmi.
- Na bungalov si můžete zvoli jakýkoliv typ střechy.
- Výhodné je také absence schodiště v domě, tudíž se bungalov stává bezbariérovým domem.
- Největší výhodou je především rychlost realizace výstavby.
Realizace typového projektu bungalovu
Ačkoliv v typizované podobě je typový dům Jubileum Profi 81 plánován pro čtyřčlennou rodinu, stavebník ze Slovenska si přál dispozice upravit jinak. Zachována zůstala špičková kvalita konstrukční technologie Difutech®, která udržuje v interiéru po celý rok příjemné klima a díky kvalitní tepelné izolaci zaručuje pohodlné bydlení s velmi nízkými náklady na vytápění.
Navíc je tento dům konstruován v pasivním standardu a v zimě jej stačí vyhřát slunce. Jinak se o vytápění starají elektrické topné fólie v podlaze a o čerstvý vzduch nucené větrání. Dodatečně si stavebník instaloval klimatizaci, protože na horká léta jihozápadního Slovenska předokenní žaluzie nestačily.
Dům s podlahovou plochou 84 m2 je v nabídce firmy ATRIUM k mání ve standardu all inclusive za cenu 2,9 mil. Kč včetně DPH bez základové desky.

Foto: ATRIUM s.r.o.
Stavebník si typový bungalov zvolil s plochou střechou.

Foto: ATRIUM s.r.o.
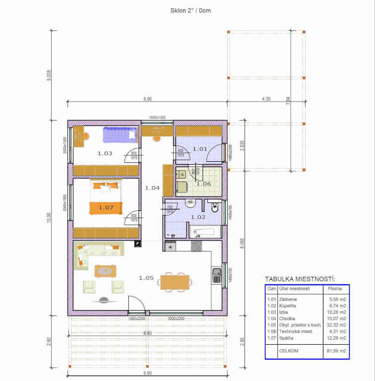
Dispozičně si bungalov lze nechat upravit podle svých přání a potřeb.

Vizualizace půdorysu: ATRIUM s.r.o.
Typový bungalov Jubileum Profi 81
Moderní bungalov s pultovou střechou Jubileum Profi 81 je zástupcem menších rodinných domů firmy ATRIUM. Tento dům si můžete nechat navrhnout s různými typy střech - plochou, pultovou nebo sedlovou. Záleží na vás, která střecha odpovídá vašim představám.
Jde sice o malý dům, který ale poskytuje útulné bydlení pro rodiče a dvě děti. Dětský pokoj lze do budoucna rozdělit příčkou. Obývací pokoj a kuchyně má dostatek světla díky velké prosklené stěně, ze které máte úžasný výhled do zahrady.
Špičková kvalita je pro firmu ATRIUM standard. Pracují s technologií Difutech®, která udržuje v interiéru po celý rok příjemné klima. Zejména tepelná izolace zaručuje pohodlné bydlení s velmi nízkými náklady na vytápění.
Bungalovy staví ve 3 stupních dokončenosti: stavba Start, stavba Plus a dům All inclusive. Dům si můžete nechat realizovat se základovou deskou nebo si základovou desku zrealizujete sami podle projektové dokumentace od dodavatelské firmy.

Vizualizace: ATRIUM s.r.o.

Vizualizace: ATRIUM s.r.o.
Technické parametry
- Realizace: ATRIUM, s.r.o.
- Počet podlaží: jednopodlažní
- Konstrukční systém: panelový
- Ostatní parametry: bezbariérový dům
- Podlahová plocha (užitná): 81,80 m²
- Zastavěná plocha: 97,00 m²
- Půdorys: 8,90 × 10,90 m
- Tvar střechy: pultová
- Dispozice: 3+kk / 3+1
- Sklon střechy: 7°
- Cena bungalovu ve fázi dokončenosti All Inclusive: 2,9 mil. Kč včetně DPH bez základové desky

Vizualizace: ATRIUM s.r.o.
Co je u projektu standardně v ceně:
- Úprava půdorysu dle vašich přání ZDARMA.
- Konstrukce domu DIFUTECH® CLIMA PLUS.
- Špičková okna Rehau Geneo s trojskly.
- Projektová dokumentace pro stavební povolení.
- Závěsné WC s instalační předstěnou Geberit.

Vizualizace: ATRIUM s.r.o.













Vytvořeno v xart.cz