Markéta Kristová | Pátek, 25. červen 2021 |
Uvažujete o bydlení v dřevostavbě a toužíte bydlet v přízemním domě? Chcete ve svém domě cítit vůni dřeva? Vybrali jsme pro vás typový projekt neobvyklého srubového bungalovu, který si můžete nechat upravit dle individuálních přání. Stejně tak to udělali i manželé z Orlických hor, kteří si tento typový srubový bungalov nechali postavit v prostředí krásné přírody, a které jsme navštívili v rámci redakční návštěvy.
Co je srub a jak se vlastně staví?
Základem jednovrstvé konstrukce srubové stavby jsou masivní dřevěné bloky nejčastěji kulatého průřezu pečlivě zbavené kůry a důsledně ošetřené proti plísním a škůdcům. Jednotlivé díly se hrubě opracují a následně formují podle předem zvoleného návrhu. Takto se sruby většinou připraví ještě ve výrobně.
Hrubá stavba je v továrně rozebrána, odvezena na příslušné místo a znovu sestavena. Charakteristickým prvkem srubů je zatesání sedlovým spojem, přes nějž klády probíhají a vyčnívají ven ze stěny. Při správné údržbě je životnost srubu i 300 let. Na detailech, jako jsou například rozvody elektřiny, je možné se po dohodě s dodavatelem domluvit přímo na místě.
Po dokončení hrubé stavby ze surového (nevysušeného) dřeva je vhodné nechat dům cca rok "sedat" a pak ho teprve dokončit. Dřevo má vysoký obsah vody a při vysychání zmenšuje objem, během prvních 10 let po dokončení stavby o cca 6 – 8 %, pak už se objem nemění. K největším změnám dochází první rok (až o 3 %), další změny probíhají mnohem pozvolněji.
Uvnitř srubové stavby lze na výstavbu příček použít zdivo i moderní materiály, například sádrovláknité nebo sádrokartonové desky. V místech, kde by však tento materiál narušoval ryze přírodní vzezření obydlí, se ponechává kulatina.
TIP NA ČLÁNEK: Reportáž ze stavby aneb jak se staví srub z masivních kulatin
obr.: Při montáži se také vkládají husí krky do předem připravených otvorů pro elektroinstalaci a frézují se otvory pro budoucí osazení zásuvek a vypínačů. Foto: Ing. David Javorský, Realizace: Kanadské sruby Tábor s.r.o.
Jaké výhody má srub?
- Stavba, ve které vám bude teplo – V zimě stačí pro pocit tepelné pohody vytápět na 20 °C. Stěna výborně akumuluje teplo, ohříváme rovnou vzduch.
- Zdravé mikroklima – Stěna je difuzně propustná a dochází k neustálé recyklaci vzduchu a regulaci vzdušné vlhkosti. Je výhodná pro alergiky.
- Masivní dřevěné konstrukce nehoří – Na povrchu hořící klády se vytvoří zuhelnatělá vrstva, která samotný dřevěný prvek chrání a brání dalšímu rozšíření požáru.
- Dřevo pracuje, ale je poddajné – Roubené a srubové konstrukce dokážou ustát poměrně velké pohyby podloží nebo základové konstrukce.
- Stavíte a bydlíte ekologicky – Výstavba po sobě zanechá malou ekologickou stopu, dřevo je obnovitelná surovina s pasivní bilancí emisí.

obr.: V případě tohoto srubu na sebe před jižním štítem plynule navazuje velkorysá terasa a skalka. Foto: Jana Lásková, Realizace: Haniš srubové domy s.r.o.
Srubový bungalov vyžaduje to správné místo
Nejdůležitější součástí bungalovu je pozemek, na kterém hodláte svou dřevostavbu realizovat. Ideální pozemek pro umístění srubového bungalovu a bungalovu obecně je rovina, která se pro něj hodí nejlépe. Z technického hlediska mu však nevadí ani svah s mírným sklonem.
V takovém případě je však důležité postavit dřevostavbu tak, aby do ní pronikal dostatek denního světla. I přesto, že stavba bungalovu vyžaduje větší pozemek, mají mnoho výhod, které z nich dělá nejvíce oblíbenou volbu pro bydlení.
Sruby se odjakživa stavěly v divoké přírodě, člověkem ne dotčené, a také jim taková místa nejvíce sluší. Stavba z masivní kulatiny je dominantou, která nejvíce vynikne na volném prostranství, nejlépe v mírně zvlněné krajině. Pokud je nablízku ještě jehličnatý či listnatý les, tím lépe.
Rozhodně by v blízkém okolí neměla stát klasická zástavba. Pro srub je tedy nejvhodnější se rozhodnout, pokud vlastníme unikátní a hlavně rozlehlý pozemek.
TIP NA ČLÁNEK: Jak vybrat vhodný pozemek pro srub nebo roubenku?

obr.: Srubový bungalov nejvíce odpovídá svým severským vzorům. U nás se staví většinou sruby patrové, aby v nich pohodlně mohla bydlet rodina. Foto: Martin Zeman, Realizace: Haniš srubové domy s.r.o.
Jaké výhody má bungalov?
- Největší výhodou bungalovu je jeho bezbariérovost. Hodí se tedy zvlášť pro starší pár nebo naopak rodinu s malými dětmi, které se mohou na schodech ve vícepatrovém domě snadno zranit.
- Bungalov je skvělou volbou i pro osoby s jakýmkoliv pohybovým omezením. Pro kompletní bezbariérovost bude ale bungalov jako dřevostavba na klíč vyžadovat dodatečné úpravy projektu.
- Bungalov nabízí v určitých směrech opravdu velkou volnost. Například při výběru střechy záleží především na vašem estetickém vkusu a omezit vás mohou pouze místní nařízení, pokud se dané lokality týkají.
- Dřevostavba typu bungalov nabízí dostatečně široké možnosti následných úprav a je snadné v ní v budoucnu změnit dispozice.
- Menší bungalov může sloužit jako celkem levné a úsporné řešení rekreačního bydlení. Větší stavba může zase sloužit jako plnohodnotný rodinný dům.
- Každá místnost bungalovu je většinou přímo propojena se zahradou.
- Neodmyslitelnou součástí bungalovu je krytá terasa.
- Stavba bungalovu bývá technicky jednodušší a tím rychleji se můžete nastěhovat.

Foto: Martin Zeman, Realizace: Haniš srubové domy s.r.o.
Srubový bungalov Jindra
Přízemní srub na klíč v Dolním Třešňovci získal v soutěži "Dřevostavba roku 2011" čestné uznání. Dispozičně je tato masivní dřevostavba na klíč navržena tak, aby pohodlně splňovala rodinné bydlení až 4 – členné rodiny. Srub na klíč je svými rozměry vhodný spíše na větší stavební parcely od 1 200 m2 a se svým vizuálním vzhledem tak spíše přirozeně zapadá do malebné krajiny s nízkou zástavbou. Při výběru této dřevostavby na klíč jsou dispoziční i rozměrové změny samozřejmě možné. Vše je možné na základě domluvy s dodavatelem, který je v tomto případě Haniš srubové domy s.r.o.

Foto: Martin Zeman, Realizace: Haniš srubové domy s.r.o.

Foto a realizace: Haniš srubové domy s.r.o.
Srub má velmi praktické 2 kryté stání přímo u vstupu do domu.

Foto: Martin Zeman, Realizace: Haniš srubové domy s.r.o.

Foto: Martin Zeman, Realizace: Haniš srubové domy s.r.o.
- Název: Srubový bungalov Jindra – srub na klíč
- Kategorie: Projekty dřevostaveb – katalog dřevostaveb na klíč
- Realizace: Haniš srubové domy s.r.o.
- Počet podlaží: jednopodlažní
- Podlahová plocha (užitná): 146,00 m²
- Zastavěná plocha: 160,00 m²
- Místnost navíc: šatna a technická místnost
- Dispozice: 4+kk / 4+1
- Cena hrubé stavby (bez DPH): 2 099 000 Kč
- Cena dřevostavby na klíč (bez DPH): 4 790 000 Kč
- Cena včetně základové desky: Ne

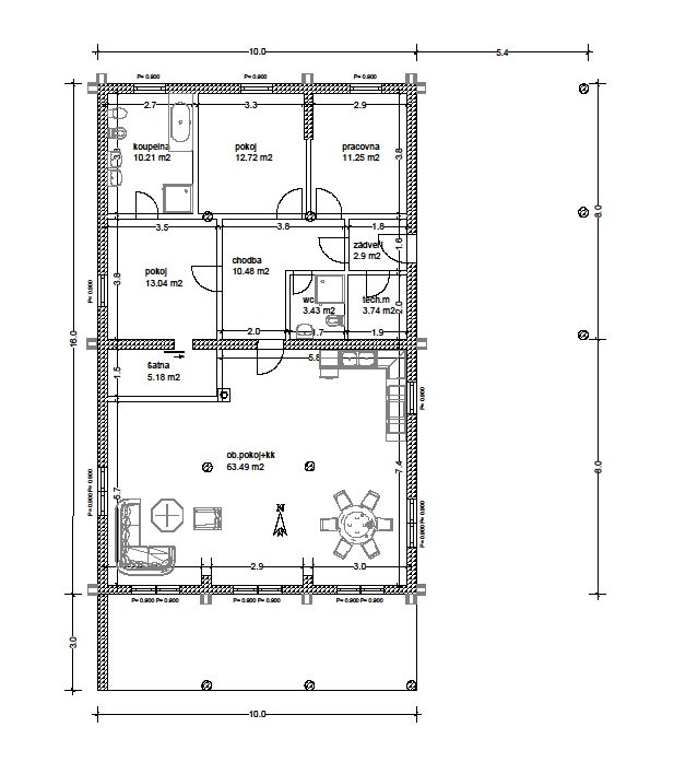
Vizualizace půdorysu: Haniš srubové domy s.r.o.
Více informací o projektu srubového bungalovu→
Zkušenost skutečných majitelů, kteří si srubový bungalov nechali postavit
Pan Petr s manželkou strávili v podhůří Orlických hor víkend v penzionu, provozovaném ve dvou srubech. V té době už okukovali různé domy, protože chtěli stavět. Moc se jim tam líbilo a právě tato zkušenost se pro ně stala prvním impulsem ke stavbě vlastní dřevostavby konkrétně srubu.
Srub ale vyžaduje ten správný pozemek. Vhodný pozemek pro srub získali Petr s manželkou asi až po ročním hledání, ve výběrovém řízení obálkovou metodou, ale byli jedinými zájemci, protože zarostlá louka ke stavění nikoho moc nelákala. Teď si užívají výhledu na srny, které chodí pít do rákosí k potoku přímo pod jejich terasou.
Po úspešném získání vhodného pozemku následovala otázka, jak bude srub vypadat a kdo ho postaví? Od počátku věděli, že nechtějí patrový dům, přestože se srubové bungalovy moc nestaví. Většinou vidíte sruby vystavěné do patra se sedlovou střechou a rovnými štíty.
„Vzor jsme si našli přes internet na Slovensku – rovný půdorys domu s přístřeškem pro auta do „L" - a s ním jsme oslovili několik českých firem. Odpověděly nám pouze dvě a z nich jsme se dohodli se stavitelem Pavlem Hanišem, o kterém jsme získali dobré reference. Například tvar střechy už jsme konzultovali s ním, protože jsem měl obavy, že bungalov s délkou devatenácti metrů i s terasou bude působit jako stodola, proto jsme mu z délky opticky ubrali zkosenými štíty a valbovou střechu. Nakonec firma Haniš, srubové domy za náš bungalov získala čestné uznání v soutěži Dřevěná stavba roku 2011, kterou každoročně vyhlašuje Nadace pro dřevo."
Na svůj srub se nejprve jezdili dívat do montážní haly, kde na něm šest týdnů pracovali tesaři motorovými pilami a bruskami, s velkou přesností a v hrozném kraválu. Stál tam jako tady na betonové podlaze, samozřejmě bez zděných příček a stropu, mohli jím už procházet. Petr s manželkou tam přivezli také elektrikáře, aby označili, kde je potřeba vyřezat průchody pro rozvody, kde budou zásuvky, vypínače a světla.
„Hotovou hrubou stavbu pak firma rozebrala a jednoho dne nám zavolal kamarád z České Třebové: „Vezou vám klády." Náhodou viděl projíždět naložené kamiony, kde na jednom trámu bylo napsané naše jméno. Se stavbou pak nebyly žádné větší problémy."

obr.: Metrové přesahy střechy chrání stěny srubového bungalovu před vodou a majitelé mohou i v dešti dům obejít suchou nohou. Proti slunečnímu záření, které způsobuje šednutí dřeva, působí přírodní nátěr s ochrannými složkami a pigmentem. Foto: Martin Zeman

obr.: Na srubu si pan Petr s manželkou hodně věcí udělali sami, protože nechtěli jen tak přijít do hotového. Foto: Martin Zeman












Vytvořeno v xart.cz