| Název: | Bungalov Jindra - srub na klíč |
| Kategorie: | Projekty dřevostaveb - katalog dřevostaveb na klíč |
| Společnost: | Haniš srubové domy s.r.o. |
| Charakteristika domu: |
|
| Počet podlaží: | jednopodlažní |
| Generačnost: | jednogenerační |
| Konstrukční systém: |
|
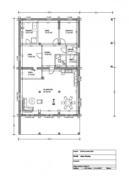
| Podlahová plocha (užitná): | 146,00 m² |
| Zastavěná plocha: | 160,00 m² |
| Místnost navíc: |
|
| Dispozice: | 4+kk / 4+1 |
| Cena hrubé stavby (bez DPH): | 2 309 000 Kč Spočítat financování |
| Cena dřevostavby na klíč (bez DPH): | 5 270 000 Kč Spočítat financování |
| Cena včetně základové desky: | Ne |
Aktuální ceny naleznete na stránkách, případně na dotaz u prezentované společnosti.
Přízemní srub na klíč v Dolním Třešňovci získal v soutěži "Dřevostavba roku 2011" čestné uznání.
Dispozičně je dřevostavba na klíč navržena tak, aby pohodlně splňovala rodinné bydlení 4 členné rodiny. Srub na klíč je svými rozměry vhodný spíše na větší stavební parcely od 1 200 m2. Srubový dům na klíč je vhodný do malebné krajiny s nízkou zástavbou.
Při výběru této dřevostavby na klíč jsou dispoziční i rozměrové změny samozřejmě možné - ochotně Vám poradíme.
NÁŠ TIP - bungalov Jindra má velmi praktické 2 kryté stání přímo u vstupu do dřevostavby.
|
Oznámkujte |
Oblíbené: 0 |
|
Nízkoenergetická dřevostavba
EKOPANELY SERVIS s.r.o.
Užitná plocha: 115 m²
Dispozice: 4+kk / 4+1
Optimal 02 - dřevostavba na klíč
PENATUS s.r.o.
Užitná plocha: 124 m²
Dispozice: 4+kk / 4+1
Ekologická dřevostavba
EKOPANELY SERVIS s.r.o.
Užitná plocha: 128 m²
Dispozice: 3+kk / 3+1
Dům venkovského stylu
EKOPANELY SERVIS s.r.o.
Užitná plocha: 153 m²
Dispozice: 4+kk / 4+1
RD Mnichovice
EKOPANELY SERVIS s.r.o.
Užitná plocha: 124.3 m²
Dispozice: 3+kk / 3+1
LUCERN 116 - dřevostavba na klíč
LUCERN dřevostavby s.r.o.
Užitná plocha: 103.1 m²
Dispozice: 4+kk / 4+1
Futura Freestyle - dřevostavba na klíč
Prodesi I Domesi
Užitná plocha: 107.8 m²
Dispozice: 3+kk / 3+1
EKONOMY MS 04 - dřevostavba na klíč
MS HAUS s.r.o.
Užitná plocha: 85 m²
Dispozice: 4+kk / 4+1
Rodinný dům 307 - dřevostavba na klíč
MARTINICE GROUP s.r.o.
Užitná plocha: 130 m²
Dispozice: 5+kk / 5+1
Lesníkova roubenka
EKOPANELY SERVIS s.r.o.
Užitná plocha: 260 m²
Dispozice: 5+kk / 5+1
Rodinný dům Tábor - dřevostavba na klíč
ALFAHAUS s.r.o.
Užitná plocha: 137 m²
Dispozice: 4+kk / 4+1
Pavo 111 - dřevostavba na klíč
A T R I U M, s.r.o.
Užitná plocha: 111.03 m²
Dispozice: 5+kk / 5+1
Dům se sloupy z douglasky
ARCHCON atelier, s.r.o., DŘEVOSTAVBY BISKUP, s.r.o.
Užitná plocha: 118.44 m²
Dispozice: 4+kk / 4+1
Bennet
KANADSKÉ SRUBY TÁBOR, s.r.o.
Užitná plocha: 177 m²
Dispozice: 5+kk / 5+1
Moderní roubenka v trampské osadě
OK PYRUS, s.r.o.
Užitná plocha: 117 m²
Proč jste na portále DŘEVO&stavby?
Copyright © 2026 Českobrodská 35, 190 12 Praha 9 - Dolní Počernice Kontakt
