Markéta Kristová | Čtvrtek, 05. květen 2022 |
Uvažujete o stavbě přízemního domu na klíč? Vybrali jsme pro vás typový projekt bungalovu, který si můžete nechat upravit dle individuálních přání. Stejně tak to udělali i manželé, kteří si tuto přízemní dřevostavbu nechali postavit na klíč, a které jsme navštívili v rámci redakční návštěvy.
Ideální pozemek pro umístění bungalovu je rovina, která se pro něj hodí nejlépe. Z technického hlediska mu však nevadí ani svah s mírným sklonem. V takovém případě je však důležité postavit dům tak, aby do něj pronikal dostatek denního světla. I přesto, že stavba bungalovu vyžaduje větší pozemek, mají mnoho výhod, které z nich dělá nejvíce oblíbenou volbu pro bydlení.
Výhody bungalovu
- Největší výhodou bungalovu je jeho bezbariérovost. Hodí se tedy zvlášť pro starší pár nebo naopak rodinu s malými dětmi, které se mohou na schodech ve vícepatrovém domě snadno zranit.
- Bungalov je skvělou volbou i pro osoby s jakýmkoliv pohybovým omezením. Pro kompletní bezbariérovost bude ale bungalov jako dřevostavba na klíč vyžadovat dodatečné úpravy projektu.
- Bungalov nabízí v určitých směrech opravdu velkou volnost. Například při výběru střechy záleží především na vašem estetickém vkusu a omezit vás mohou pouze místní nařízení, pokud se dané lokality týkají.
- Dřevostavba typu bungalov nabízí dostatečně široké možnosti následných úprav a je snadné v ní v budoucnu změnit dispozice.
- Menší bungalov může sloužit jako celkem levné a úsporné řešení rekreačního bydlení. Větší stavba může zase sloužit jako plnohodnotný rodinný dům.
- Každá místnost bungalovu je většinou přímo propojena se zahradou.
- Neodmyslitelnou součástí bungalovu je krytá terasa.
- Stavba bungalovu bývá technicky jednodušší a tím rychleji se můžete nastěhovat.
Typový bungalov Instinkt
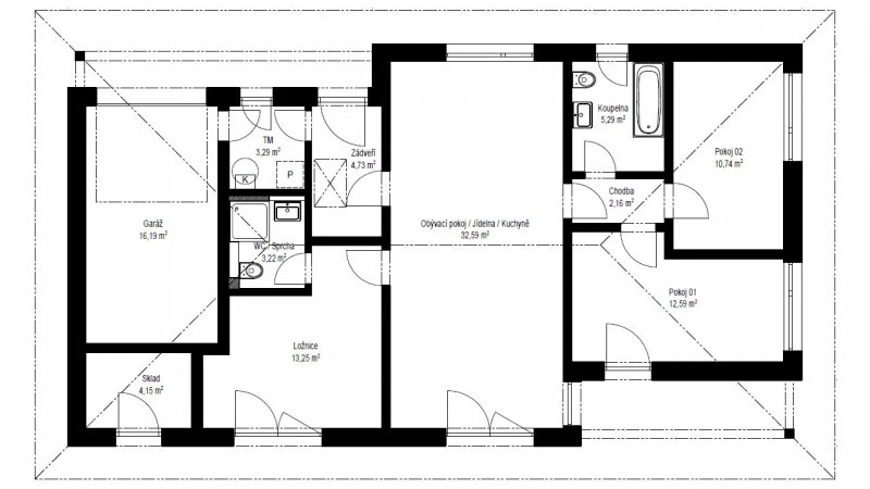
Typový bungalov Instinkt 1-108 nabízí na zastavěné ploše necelých 150 m2 kromě čtyř pokojů a kuchyňského koutu také prostor pro koupelnu, technickou místnost a sklad. Srdcem bungalovu je obývací pokoj s kuchyňským koutem a jídelnou, s pohodlným přístupem přímo na terasu. Součástí domu je navíc garáž.
- Realizace: Haas Fertigbau s.r.o.
- Počet podlaží: jednopodlažní
- Konstrukční systém: panelová dřevostavba
- Podlahová plocha (užitná): 108,20 m²
- Zastavěná plocha: 149,10 m²
- Dispozice: 4+kk / 4+1
- Cena hrubé stavby (vč. DPH): 3 920 000 Kč
- Cena dřevostavby na klíč (vč. DPH): 5 949 000 Kč
- Cena včetně základové desky: Ne

Zdroj: Haas Fertigbau s.r.o.
Zkušenost majitelů, kteří si typový bungalov nechali postavit
„Potřebovali jsme bydlení rychle. Jsme starší a nemůžeme čekat roky, až se dům postaví. Nechtěli jsme ztrácet čas. Toužili jsme užívat si zhmotněného snu co nejdříve." Vybranou dodavatelskou firmu si manželé prověřili ještě na veletrhu dřevostaveb, návštěvou hotových domů i výrobní haly, aby měli jistotu, že vybrali správného partnera na cestu za vysněným bydlením.
„Naším požadavkem byl přízemní bungalov s garáží. Zvolili jsme konkrétní typový projekt a ve spolupráci s projektanty udělali několik úprav. Jednu místnost nahradila spižírna, zmizely nepraktické dveře vedoucí přímo z obývacího pokoje, dílna v návaznosti na garáž a další drobnosti." Stavební povolení proběhlo velmi rychle a samotná realizace se tedy blížila mílovými kroky. „Lokální firmou jsme nechali připravit základovou desku a 14. ledna odstartovala stavba samotného domu. Zůstali jsme v té době u syna, abychom mohli celý proces sledovat. To byl koncert! Za čtyři dny byl dům pod střechou s osazenými okny i dveřmi. 28. března jsme dostali do rukou klíče od dokončeného objektu. Finální stěhování pak proběhlo 30. června," vzpomínají Jana s Petrem.
„Máme svůj vysněný pohodlný přízemní dům a jsme opravdu spokojeni. Jen bychom si moc přáli, aby nám to ještě pár let vydrželo. Pořád si říkáme, kdyby to bývalo šlo dřív, ale prostě to nešlo. A tak se radujeme, že máme takový domov alespoň teď, a užíváme plnými doušky," uzavírají vyprávění spokojení majitelé.
Zdroj vizualizací: Haas Fertigbau s.r.o.

Líbí se vám typový bungalov Instinkt? Zašlete dodavateli přímý dotaz!
Dřevostavby Haas, to je tradice a dlouholeté zkušenosti. Na evropském trhu působí 50 let a má na kontě přes 50 000 staveb. Společnost Haas Fertigbau je součástí rodinného koncernu Haas Group, který působí po celé Evropě.











.jpg)
.jpg)
.jpg)
.jpg)
.jpg)



Vytvořeno v xart.cz