Markéta Kristová | Středa, 14. červen 2023 |
Tento individuálně navržený dvoupodlažní dům o dispozici 6+kk s garáží byl postaven s kvalitním zateplením, rekuperací a tepelným čerpadlem. Díky důmyslnému uspořádání nabízí na své užitné ploše o rozloze 233,77 m2 dostatek místa pro vícečlennou rodinu.
Na první pohled dům upoutá svou fasádou. Kombinace cihlového obkladu a dřevěné fasády ze sibiřského modřínu, která byla použita na garážové stání pouze dokazuje, že cihla a dřevo se mohou příjemně doplňovat.
Jednotlivé místnosti v interiéru, které se nesou ve světlých tónech, působí velmi vzdušným a přívětivým dojmem. Kuchyně spojená s obývacím pokojem a galerií tvoří moderní otevřený prostor, kterému na světlosti přidává velkoformátové posuvné okno spojující dům se zahradou. Dominantou obývacího pokoje je krb, který vytváří příjemnou atmosféru především v zimních měsících.
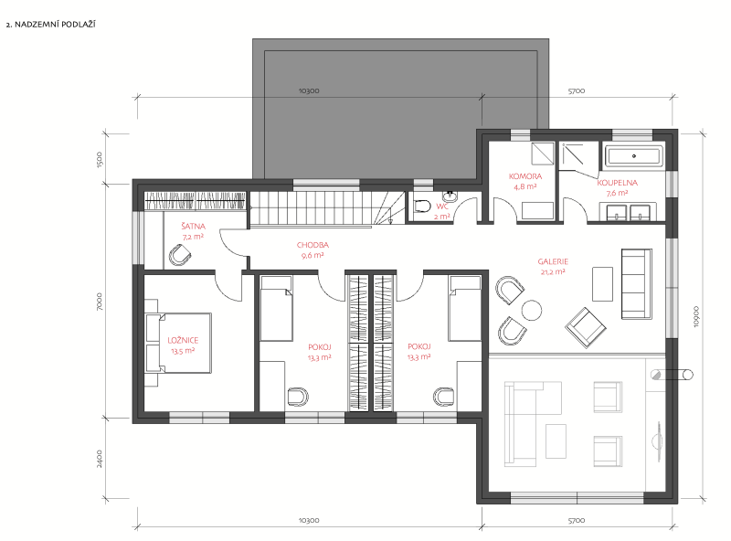
V přízemí dále najdeme pracovnu, pokoj se šatnou a WC. Obě podlaží propojuje otevřené schodiště s bukovou povrchovou úpravou a prosklenou stěnou, po kterém se vystoupá do chodby. Ta spojuje prostor s galerií, která rodině slouží k volnočasovým aktivitám u stolního fotbalu nebo u klavíru.
Ve druhém podlaží najdeme také dva dětské pokoje, ložnici se šatnou, WC, koupelnu a komoru. Benefitem celého domu je jeho krásně udržovaná zahrada, které přináší majitelům dostatek místa k venkovním aktivitám i relaxaci.
Otázky na majitele
Měli jste od začátku představu, jak bude dům vypadat nebo jste nechali návrh čistě na realizační firmě?
Přibližnou představu o domě jsme už měli. Věděli jsme, že chceme dům v pasivním standardu, jaký by měl mít tvar, jaký počet pokojů by měl mít v každém patře a měli jsme také požadavek na obývací pokoj s otevřeným prostorem a galerií v patře. Tyto naše představy pak paní architektka společnosti Lucern přetransformovala do individuální studie našeho rodinného domu.
Jak jste přišli na firmu LUCERN a jak probíhala realizace?
Na realizační firmu Lucern jsme natrefili při brouzdání internetem. Velice nás zaujal design jejich domů a téměř 100 % pozitivní reference od spokojených majitelů. Realizace probíhala od začátku velmi profesionálně. Od formování studie, přes cenotvorbu až po samotnou realizaci jsme měli pocit, že s firmou Lucern jsme v rukou odborníků, kteří vědí co dělají. Jejich asi největší výhodou ve srovnání s konkurencí je koncept stanovení finalní ceny domu na základě vypracování studie RD. Nutno podotknout, že tato cena pak byla opravdu dodržena.
Proč jste se rozhodli pro cihlový obklad v kombinaci se dřevěnou fasádou u garáže?
Již při zadávání vstupních podkladů k vypracování studie jsme přišli s představou cihlového obkladu. Cihlová fasáda v britském stylu alespoň na části našeho budoucího domu byl designový prvek, na kterém jsme se od prvního momentu shodli oba s manželkou. Když nám pak paní architektka navrhla obklad v kombinaci se dřevěnou fasádou, moc se nám to zalíbilo a vzhled domu jsme už pak v tomto duchu také zfinalizovali.
Co si na domě nejvíce užíváte?
Velmi si užíváme dostatečně prostornou obytnou zónu (obývací pokoj + kuchyň) a napojení domu na přilehlou zahradu s velkým počtem velkoformátových oken a balkonových dveří, díky kterým máme neustále pocit kontaktu s okolní zelení a přírodou.
Technické parametry
- Dispozice: 6+kk + galerie a garáž
- Zastavěná plocha: 174.7 m2
- Užitná plocha: 233.77 m2
- Dodávka: komplet RD na klíč
- Návrh: LUCERN dřevostavby s.r.o. - individuální návrh
- Technologie: rekuperace ZEHNDER, podlahový systém REHAU, TČ IVT

























Vytvořeno v xart.cz