Markéta Kristová | Úterý, 09. duben 2024 |
Plánujete stavět dům a patříte mezi ty, kteří chtějí bydlet v jedinečném domě podle svých představ? Nechte se inspirovat touto originální dřevostavbou podle individuálního návrhu, která splňuje požadavky na komfortní bydlení nejen u svých majitelů ale také v oblasti, ve které je postavena.
Architekti z firmy LUCERN dřevostavby klientům rádi navrhují domy přímo na míru. V tomto případě bylo navíc potřeba vyhovět i požadavkům památkářů, protože se jednalo o oblast, kde musel být zachován tradiční ráz domu. Volba proto padla na klasický dům s moderními prvky, který se hmotově skládá ze dvou částí.
Jedna část domu je věnována pouze hlavnímu obytnému prostoru s bílým kuchyňským koutem a jídelnou, který je díky otevření do krovu velice vzdušný a světlý. Spojovací chodba vede do přízemního podlaží druhého objektu.
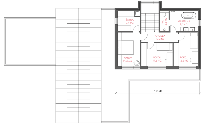
Zde je umístěna koupelna se saunou, pracovna, technická místnost a zádveří. Nachází se zde také schodiště do druhého podlaží, prosvětlené velkým oknem, které vede do klidové části domu. Ta je tvořena ložnicí rodičů, dvěma dětskými pokoji a koupelnou.
Ze všech obytných pokojů je přístup na balkon, který zároveň vytváří zastřešení spodní terasy. Všechna okna ve spodní části domu jsou otevíratelné s přímým vstupem na rozlehlou zahradu, kde nechybí zeleninová zahrádka a dětská houpačka na stromě. Součástí domu je také garáž pro dvě auta.
Technické parametry
- Dispozice: 6+kk + garáž
- Zastavěná plocha: 252 m²
- Užitná plocha: 214 m²
- Technologie: tepelné čerpadlo DeDietrich, podlahové vytápění REHAU, rekuperace ZEHNDER
- Projekt a realizace: LUCERN dřevostavby s.r.o., www.lucern.cz






















Vytvořeno v xart.cz