PROJEKT z adresáře: AGÁTA
Dagmar Šimonová | Pátek, 29. listopad 2013 |
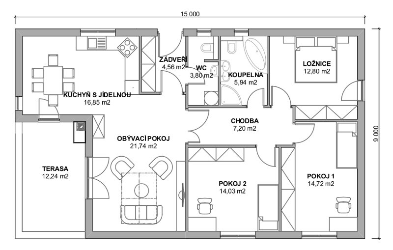
Rodinný dům AGÁTA od společnosti A-DŮM s.r.o. je přízemní rodinný dům pro 4-5 osob. Objekt je vhodný do nízké zástavby rodinných domů. Svým vzhledem je možné rodinný dům umístit jak do nové, tak i do staré zástavby.
Historie společnosti
A-DŮM s.r.o. je společnost projektující a realizující dřevostavby ve spolupráci s vlastním projekčním atelierem A-STYL v individuálním i typovém provedení z vlastního katalogu.
Společnost vznikla v roce 1992 a postupnou transformací a vývojem se v roce 2001 dopracovala k vlastní projekční kanceláři s vlastní katalogovou nabídkou rodinných domů, kterou neustále inovuje a rozšiřuje. Velkou devizou je právě propojení a zpětná vazba realizace s projekcí. Za zásadní pak společnost považuje komunikaci s klientem nad jeho představami a požadavky.
Energetické parametry domu AGÁTA a další informace naleznete ZDE!
Projekty a realizace dřevostaveb
Více projektů a realizací dřevostaveb od vybraných výrobců a dodavatelů dřevostaveb najdete v sekci Projekty a realizace dřevostaveb. Můžete vybírat z obrázkového zobrazení nebo vyhledat projekt podle zadaných parametrů. Při realizaci vašeho nového domu se vám bude hodit i náš Adresář firem pro stavbu a vybavení - zde, jehož tištěnou verzi - Adresář výrobců a dodavatelů dřevostaveb si můžete ZDARMA objednat na Tato emailová adresa je chráněna před spamboty, abyste ji viděli, povolte JavaScript nebo prohlédnout v online verzi zde.


















Vytvořeno v xart.cz