PROJEKT z adresáře: RD Cvrčovice
Helena Petáková | Čtvrtek, 27. březen 2014 |
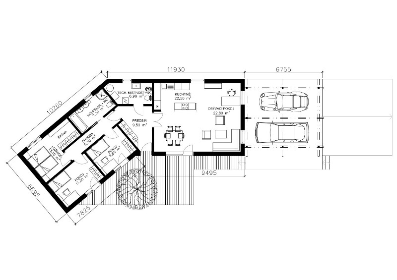
Přízemní rodinný dům Cvrčovice od společnosti Origis s.r.o. je situován na mírně svažitém pozemku. Rodinný dům je menší velikosti s dispozici 4+kk. Dům je provozně rozdělen na obytnou část a klidovou část, které jsou propojeny chodbou a technickým zázemím.
Hmota domu je zalomena o 45 stupňů, směrem do zahrady vytváří vnitřní prostor, ve kterém je umístěna terasa s dostatečným soukromím. Oslunění postupuje během dne z jižní klidové části do obytné jihozápadní části. K domu přiléhá z jihovýchodní strany kryté parkovací stání.

Cena neobsahuje spodní stavbu, přístřešek, dopravu a DPH. Aktuální ceny naleznete na stránkách, případně na dotaz u prezentované společnosti.
Společnost byla založena v roce 2009 s cílem nabídnout klientům komplexní služby spojené se stavbou rodinného domu. Používá především difuzně otevřenou skladbu. Konstrukce je přizpůsobena požadavkům klienta s ohledem na ztráty domu, akumulaci, flexibilitu, návratnost investic a ekologii. Dřevěná konstrukce se vyrábí z řeziva KVH nebo masivních dřevěných panelů (CLT desek). Pro lepší akustiku jsou standardně používány lité podlahy. Na přání zákazníka lze realizovat také hliněné omítky a zděné vnitřní příčky.
Více informací na www.origis.cz
Projekty a realizace dřevostaveb
Více projektů a realizací od vybraných výrobců a dodavatelů dřevostaveb najdete v sekci Projekty a realizace dřevostaveb. Můžete vybírat z obrázkového zobrazení nebo vyhledat vzorový dům podle zadaných parametrů. Při realizaci vašeho nového domu se vám bude hodit i náš Adresář firem pro stavbu a vybavení - zde, jehož tištěnou verzi - Adresář výrobců a dodavatelů dřevostaveb si můžete ZDARMA objednat na
Tato emailová adresa je chráněna před spamboty, abyste ji viděli, povolte JavaScript
.












Vytvořeno v xart.cz