Dřevostavba na chilských stráních je architektonický kříženec
Dagmar Šimonová | Středa, 21. březen 2012 |
Rodinný dům u chilského města Talca vystavuje příchozím na odiv trochu netradiční část – velkou střechu, která plynule přechází do vertikálně obložené stěny. Hlavní „fasádu" domu tak tvoří prostorná pobytová terasa, ze které se rozprostírá panoramatický výhled na celou okolní krajinu. Jednopodlažní dům je založen na jednoduché myšlence, kterou architekti dotvářeli podle několika kritérií. Z hlediska architektury a designu se ale dostali do konfliktu několika různých stylů. Dům tak dostal své jméno Kiltro, což v chilském dialektu znamená Kříženec.
Nízký rozpočet donutil tvůrce k maximální efektivitě
Výstavbu hned od počátku trápila dvě zásadní úskalí – nízký rozpočet a velice komplikovaný pozemek. Dům byl tak vyzvednut na pilíře, uložené do příkré stráně a jen lehce převýšil okolní terén. Podlaha byla zakotvena do svahu, což výrazně pomohlo při příčném ztužení domu, kterému v této lokalitě hrozí občasná zemětřesení. Stavba byla dokončena v roce 2008 a celkový rozpočet se nakonec vtěsnal do 80 000 dolarů. Jejími autory je architektonické studio Supersudaka.
Elementárně jednoduchý koncept dřevostavby působí překvapivě komplexně
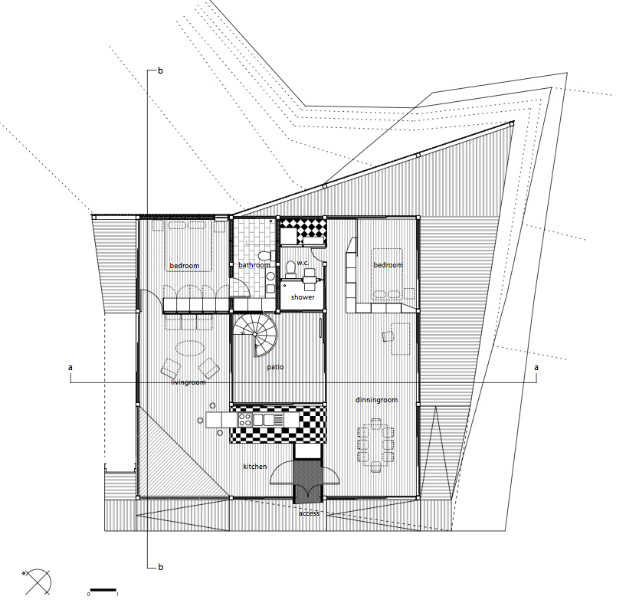
Koncept domu je založen na jednoduché mřížce, která vytváří půdorysné rozvržení. V prostřední sekci vzniká otevřené atrium s točitým schodištěm, odkud mohou obyvatelé vystoupat na střechu. Přesahy vodorovných konstrukcí zabraňují vysokému polednímu slunci pronikat do interiéru a způsobit nepříjemné přehřívání, naopak chladné paprsky nízkého ranního, večerního a zimního slunce mohou bez překážky pokračovat dál. Promyšlen byl také systém přirozené ventilace, která při otevření těch správných otvorů chladí celý dům i bez nákladného systému klimatizace.
Jednoduchý dřevěný obklad umožnil stavbě téměř splynout s okolní přírodou
Vykalkulovaná a poměrně strohá geometrie domu obdivuhodně ladně splývá s okolním terénem. Ortogonální půdorysný systém je podle přání investorů velice volný, jeho pevnými body je vnitřní atrium, sociální zázemí a hlavní ložnice. Pracovní ateliér, ložnice pro hosty a velký obytný prostor tvoří volnou dispozici, upravitelnou podle aktuální potřeby. Interiér působí prostorně, přestože užitná plocha je sražená na pouhých 104 m2. Prostorové velikosti značně napomáhá prosklení stěn, směřujících do údolí. Přestože je pozemek zdánlivě osamělý, do blízkého města se jeho obyvatelé dostanou za pouhých pět minut.












Vytvořeno v xart.cz