Jedno místo, jeden genius loci, dvě stavby. Roubenka na odlehlém místě uprostřed lesa vypadá, jako by tady stála věky. Zda ano či ne, nelze říci jednoznačně, její osud je trochu spletitější, než u takových domů běžně bývá.
Majitel koupil starou roubenku jako investici i místo pro odpočinek a následně oslovil architekty, s nimiž už dříve spolupracoval, aby stavbu zhlédli a navrhli potřebné úpravy. Na první pohled předpokládali, že budou stačit jen nějaké dílčí úpravy, druhý pohled prozradil, že kosmetické změny vzhledu a uspořádání nebudou zdaleka dostatečné. „Bylo vidět, že roubenka je místy shnilá," vzpomíná Rostislav Černík, „původní majitelé tam jezdili, ale neudržovali ji, nebylo tam pořádné sociální zázemí, byla ve špatném stavu. Na naše doporučení si klient nechal udělat mykologický průzkum a ukázalo se, že stavba je tak narušená, že bez razantního zásahu do několika let podlehne zkáze."
Rozebrat a postavit znovu?
Jednodušší tedy bylo rozebrání domu a vybudování repliky. Samotná stavba byla velmi náročná, neboť byly využívány původní historické stavební postupy z doby před sto lety. „Našli jsme stavitele, který tyto postupy ovládal," vzpomíná Černík. „My jsme vytvořili dokumentaci ke stavebnímu povolení a dohlíželi na správnou realizaci. Kladli jsme důraz na precizně zpracovanou dílenskou prováděcí dokumentaci stavby, kde byly předem řešeny jednotlivé dřevěné prvky tak, aby byly staticky i konstrukčně přiznávané a korespondovaly s budoucím stavem interiéru." Jako prvotní vznikla dispozice s rozměry nábytku a jeho přesným umístěním, tomuto uspořádání byly přizpůsobovány instalace. Při realizaci interiéru a při montáži kuchyně se pak už jen upravovaly vývody kanalizace, vody a elektrického vedení.
Terasa a wellness navíc
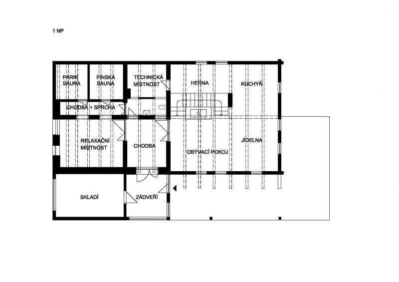
Vstupní část domu je spojena s terasou, která původně u roubenky nebyla. Za vstupními dveřmi je zádveří, z něhož se vchází do prostorné chodby. Ta dělí přízemí na dvě části. Jeho velkou část zabírá vzdušný obytný prostor s kuchyní, sezením a krbem. V kuchyni je jedna obrovská pracovní plocha a další plocha se dřezem a sporákem, je zde také solitérní lednice. Kuchyně je zařízena v jednoduchém stylu, ale je maximálně funkční se vším všudy a svým pojetím se do chalupy hodí. Kuchyňská linka a jídelní stůl jsou vyrobeny z běleného dubu, který je použit také jako podlahová krytina. V přízemí je dále příjemné wellness s parní a finskou saunou a sprchou a praktickým přístupem přímo ven — autentickému zážitku z kombinace sauny a skoku do sněhu se žádná sprcha nevyrovná. Přístup do podkroví umožňuje jednoduché kovové schodiště, které ústí na otevřenou galerii, z níž je možné vejít do čtyř ložnic, je zde i pohodlná koupelna. Po žebříku je pak možné vystoupat do štítu, kde mohou přespávat další návštěvy, pokud by pokoje v domě nestačily.
Nový život pro kámen
Přírodní kámen, získaný ze základů původní stavby, byl využit opět v nové stavbě. „Využili jsme pouze kámen, původní dřevo nebylo možné použít, a ponechali jsme i některé kamenné části, které se dozdívaly, opravovaly a obnovovaly. Vznikl tak pevný vybetonovaný základ na stejném půdorysu, na němž byla postavena v podstatě klasická roubenka," vysvětluje Rostislav Černík. Místním kamenem zajímavého odstínu jsou obloženy také stěny v domě a samozřejmě i krb, který tvoří v přízemí stabilní kamennou masu, a dále ústí na galerii do lehkého kovového tubusu, jenž působí dekorativně a současně prostor i vytápí.
„Realizace interiéru i stavby byla náročná", vzpomíná Rostislav Černík, „majitel chtěl mít dům hotový do Vánoc, ale v říjnu napadl sníh a příjezdová cesta prakticky přestala existovat. Právě jsme realizovali interiér, takže jsme za pásovou čtyřkolku zapřáhli saně a na nich jsme vozili rozložený nábytek. Takhle jsme jezdili několikrát asi deset kilometrů tam a zpátky a přiváželi vše, co bylo třeba."
Dům je také špičkově vybaven elektronikou. Všechna zařízení fungují na dálkové ovládání, je možné předem přitopit, na dálku dům kontrolovat, regulovat jeho chod, mít přehled o všem, co se tam děje — nejen z hlediska bezpečnosti, ale i provozu.
Zastavěná plocha: 180 m2
Užitná plocha: 250 m2
Spodní stavba: kámen
Stavební systém: roubená konstrukce, smrk
Střešní krytina: přírodní břidlice
Vnitřní příčky: kamen a dřevo
Voda: vlastní vrt
Podlahy: obytný prostor—bělený dub, zádveří, koupelna a wellness — břidlice
Okna: přírodní dub
Dveře: dub
Topení a příprava teplé vody: elektro, podlahové topení
Návrh a realizace interiéru: Ing. arch. Ivana Dombková, Rostislav Černík, www.dombkova.cz
Futura Freestyle - dřevostavba na klíč
Prodesi I Domesi
Užitná plocha: 107.8 m²
Dispozice: 3+kk / 3+1
Lesníkova roubenka
EKOPANELY SERVIS s.r.o.
Užitná plocha: 260 m²
Dispozice: 5+kk / 5+1
Ekologická dřevostavba
EKOPANELY SERVIS s.r.o.
Užitná plocha: 128 m²
Dispozice: 3+kk / 3+1
EKONOMY MS 04 - dřevostavba na klíč
MS HAUS s.r.o.
Užitná plocha: 85 m²
Dispozice: 4+kk / 4+1
RD Mnichovice
EKOPANELY SERVIS s.r.o.
Užitná plocha: 124.3 m²
Dispozice: 3+kk / 3+1
Moderní roubenka v trampské osadě
OK PYRUS, s.r.o.
Užitná plocha: 117 m²
Dům se sloupy z douglasky
ARCHCON atelier, s.r.o., DŘEVOSTAVBY BISKUP, s.r.o.
Užitná plocha: 118.44 m²
Dispozice: 4+kk / 4+1
Dům venkovského stylu
EKOPANELY SERVIS s.r.o.
Užitná plocha: 153 m²
Dispozice: 4+kk / 4+1
Optimal 02 - dřevostavba na klíč
PENATUS s.r.o.
Užitná plocha: 124 m²
Dispozice: 4+kk / 4+1
Pavo 111 - dřevostavba na klíč
A T R I U M, s.r.o.
Užitná plocha: 111.03 m²
Dispozice: 5+kk / 5+1
Nízkoenergetická dřevostavba
EKOPANELY SERVIS s.r.o.
Užitná plocha: 115 m²
Dispozice: 4+kk / 4+1
Bennet
KANADSKÉ SRUBY TÁBOR, s.r.o.
Užitná plocha: 177 m²
Dispozice: 5+kk / 5+1
Rodinný dům Tábor - dřevostavba na klíč
ALFAHAUS s.r.o.
Užitná plocha: 137 m²
Dispozice: 4+kk / 4+1
LUCERN 116 - dřevostavba na klíč
LUCERN dřevostavby s.r.o.
Užitná plocha: 103.1 m²
Dispozice: 4+kk / 4+1
Rodinný dům 307 - dřevostavba na klíč
MARTINICE GROUP s.r.o.
Užitná plocha: 130 m²
Dispozice: 5+kk / 5+1
Dřevostavba roku - archiv
Copyright © 2026 Českobrodská 35, 190 12 Praha 9 - Dolní Počernice Kontakt
