Stále častěji mám pocit, že by to s domy mělo být jako s hudbou. Záleží na intonaci i kvalitě tónu, na brilanci a souhře. Spolu s jasnou stylovou orientací a bohatostí výrazové palety je orchestr schopen vystřihnout skladbu do podoby omračujícího zážitku. Jak ale u domu dosáhnout toho, že se z Ovčáků čtveráků stane Devátá symfonie? Stačí namixovat nápaditost s barevností, přidat útulnost, zkusit vzdát se zbytečného a celé to zrytmizovat tak, že už pouhé vrznutí dveří zvedne člověku náladu.
Bez dirigenta by ovšem koncert nebyl dotažený. To on dává dílu dynamiku a drží takt. Stejně jako Irena Truhlářová, která „složila" tento dům a sama nám ho teď „přehraje".
Ladění
Navrhování tohoto domu bylo v mnohém nestandardní. Jelikož majitelé pobývají část roku v Mexiku, přišlo první zadání mailem a seznamovací „schůzka" s Markem a Terezou proběhla po Skypu. Lákala je dřevostavba kvůli silnému vztahu ke dřevu a rychlosti výstavby. Cena a energetická náročnost nehrály zásadní roli. K zohlednění dispozic pozemku a usazení domu do kontextu s okolím mi dopomohl otec majitelky, který mě po něm provedl. Je krásně situovaný, na klidném místě přímo u lesa a s výhledem na barokní věže místního kostela. Hned bylo jasné, proč jeho umístění a velikost hrály pro majitele tak důležitou roli.
Studie pak probíhala opět virtuálně přes půl světa. Naživo jsme se všichni setkali až ve chvíli, kdy byl návrh hotový.
Partitury
I v případě projektování tohoto domu jsem se přesvědčila, jak je diskuze mezi investorem a architektem důležitá. Velmi se mi líbily zahraniční reference dřevostaveb s pohledovým dřevem, které mi majitelé zaslali hned v úvodu. Měli v mnoha ohledech jasnou představu o tom, co chtějí, a uměli to přesně definovat. Oceňuji však i to, že byli otevřeni debatě, a když se vyskytlo jiné, výhodnější řešení, dokázali názor změnit.
Šlo například o jejich prvotní představu, že dům bude mít suterén a v něm technické zázemí. Výsledkem diskuzí nakonec byla adekvátní náhrada v podobě praktické technické místnosti v přízemí, která pojme kromě kotle, vzduchotechnické jednotky a bojleru i sprchu pro psy, spižírnu, mrazák a lednici. Jelikož má vlastní vstup se schodištěm na zahradu, je zde začleněna i skříň na obuv a oděvy pro zahradničení. Prádelnu a žehlírnu jsme s ohledem na umístění většiny ložnic, respektive šatny „vynesli" do patra.
Obdobně jsme přehodnotili i orientaci přízemní terasy, kdy vzhledem k dispozici pozemku, výhledu z něj a ohledu na dopad slunečního světla i tepla nešlo dostát přání mít ji otočenou směrem ke kostelu. Dlouho jsme debatovali také o kombinaci dřevěné podlahy z masivu a podlahového vytápění nebo o velikosti hlavní koupelny a volně stojící vaně. Zde bych upozornila na prvek oválu, který mám moc ráda a zde je aplikován jak u vany, tak u zrcadla.
Rovněž jsem ráda, že jsme hlavní vstup do domu umístili do jeho jižní části, a nikoliv – jak se nabízelo – z boku od krytého stání pro vozy. Pocitově, ale i z pohledu feng-shui je dobré oddělit pěší vstup od příjezdu automobilem. Teď se k výrazným dveřím v barvě Karibiku vine cestička z kamene, lemovaná záhonem květin, a na příchozí návštěvu působí velice mile. Domácí nepřítomnost bočního vstupu nijak neobtěžuje, neboť se od auta dostanou ke dveřím suchou nohou po krytém ochozu.
Změny byly konstruktivní ale i směrem k našim zažitým postupům. Například ke stavebnímu standardu patří řešení patek terasových sloupů pomocí stavěcího šroubu (na trn), díky němuž jakoby levitují nad podlahou terasy. V tomto případě ale dostaly na přání majitelů kovové „nožičky", které vizuálně podtrhují stabilitu konstrukce.
Jelikož byli investoři pod časovým tlakem pro získání stavebního povolení, zpracovali jsme nejprve projektovou dokumentaci pro stavební povolení a až v dalším kroku jsme řešili dokumentaci prováděcí včetně interiéru. Vzhledem k časovému odstupu zpracování jednotlivých stupňů dokumentace ale pak nebylo úplně jednoduché udržet všechny informace.
Rezonance
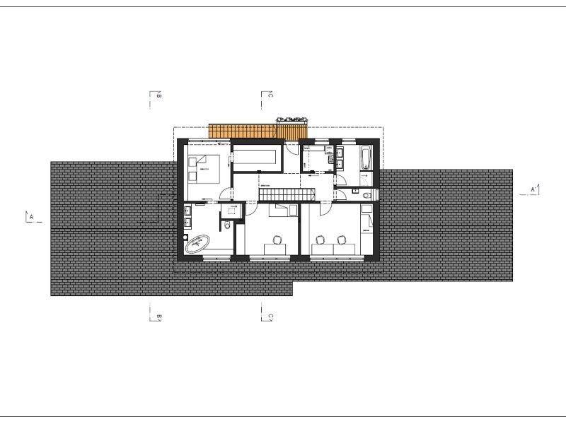
Dominantním prvkem obou podlaží je zvýrazněná konstrukce a pohledové dřevo. První nadzemní patro je de facto přízemní na úrovni zahrady, ale díky víceúrovňové podlaze dělá dojem vzdušného prostoru, který je tak výškově rozčleněn a propojen oboustranným, průhledovým krbem.
Soustředili jsme se na vizuální návaznost kuchyně s lesem prostřednictvím velkého rohového okna, a současně jsme prostor uchopili tak, aby kuchyně byla spojena s jídelnou, ale zároveň od zbytku přízemí oddělena. Napomáhá tomu její umístění do výklenku, kdy při pohledu z níže položeného obýváku není téměř vidět. I přes tento fakt však zůstává spolu s jídelnou srdcem domu. Jelikož má rodina pět členů, dva psy a mnoho přátel, najdete na sporáku netypických šest plotýnek a v jídelně bytelný, dřevěný stůl s lavicemi. Původně se k němu mělo sejít až čtrnáct hodovníků, ale nakonec jsme se shodli na deseti.
V „obýváku" se od počátku neuvažovalo o klasické sedačce, ale spíše o volném variabilním sezení, kde je pohled soustředěn jak na široký výhled do zahrady a k lesu, tak směrem ke stavebně i barevně atypickému krbu. Zbývající prostor už je členěn do místnosti vstupu (zádveří), pokoje pro hosty s koupelnou, samostatné toalety a pracovny, která je rovněž orientována s maximálním výhledem do lesa.
Vzdušné schodiště vás pak přivede do druhého nadzemního patra prosvětleného i střešními okny, což vytváří příjemnou atmosféru haly horního podlaží. Zde je umístěna ložnice a pokoje dětí, přičemž ze všech místností je vytoužený výhled na dříve zmíněný kostel. K ložnici přiléhá šatna a koupelna rodičů, o zbytek prostoru se dělí koupelna dětí, toaleta a prádelna.
Typ domu: nízkoenergetický
Zastavěná plocha: 315 m2
Užitná plocha: 370 m2
Spodní stavba: nepodsklepená, výškově dvouúrovňová základová deska + pasy, izolace na desce EPS
Konstrukční systém: třívrstvý šroubovaný panel
Tepelná izolace: dřevovláknitá izolace + minerální v předstěnách
Fasáda: provětrávaná fasáda – vodorovný dřevěný obklad
Střešní krytina: skládaná – Cembrit – anglický obdélník
Okna: dřevo-hliníková, U = 0,7 w/m2K
Podlahy: dřevěné, keramická dlažba, marmoleum
Teplo: kondenzační plynový kotel 2,3–16,9 kW, nepřímo ohřívaný zásobník 150 l, sekundární zdroj krbová vložka, podlahové vytápění + kombinované žebříky
Skladba stěny (směrem zevnitř): SDK + povrchová úprava 12,5 mm, CD profil + minerální izolace (λd = 0,04 W/m.K) 60 mm / přímé závěsy (alt. stavěcí třmeny) 87 mm, masivní dřevěné panely DEKPANEL D 81 mm, dřevovláknitá izolace GUTEX Thermosafe-homogen (λd = 0,04 W/m.K) 180 mm, difuzně otevřená fólie Omega Mono nebo Omega fasádní fólie, kontralatě 60 × 40 / provětrávaná vzduchová mezera 60 mm, horizontální dřevěné obložení – modřín sibiřský s nátěrem 19 mm
Celková tloušťka stěny: 44 cm
Součinitel prostupu tepla U stěnou: Un = 0,156 w/m2K W/m2K
Studie a projekt: Ing. Irena Truhlářová, spolupráce Ing. Martin Jirsa, ARCHCON atelier, s.r.o., www.archcon.cz
Realizace: DŘEVOSTAVBY BISKUP, s.r.o., www.drevostavbybiskup.cz, 2015–2016
Futura Freestyle - dřevostavba na klíč
Prodesi I Domesi
Užitná plocha: 107.8 m²
Dispozice: 3+kk / 3+1
Chata v Jizerských horách - dřevostavba na klíč
3AE s.r.o.
LUCERN 116 - dřevostavba na klíč
LUCERN dřevostavby s.r.o.
Užitná plocha: 103.1 m²
Dispozice: 4+kk / 4+1
Rodinný dům 307 - dřevostavba na klíč
MARTINICE GROUP s.r.o.
Užitná plocha: 130 m²
Dispozice: 5+kk / 5+1
Nízkoenergetická dřevostavba
EKOPANELY SERVIS s.r.o.
Užitná plocha: 115 m²
Dispozice: 4+kk / 4+1
Dům se sloupy z douglasky
ARCHCON atelier, s.r.o., DŘEVOSTAVBY BISKUP, s.r.o.
Užitná plocha: 118.44 m²
Dispozice: 4+kk / 4+1
Rodinný dům Tábor - dřevostavba na klíč
ALFAHAUS s.r.o.
Užitná plocha: 137 m²
Dispozice: 4+kk / 4+1
EKONOMY MS 04 - dřevostavba na klíč
MS HAUS s.r.o.
Užitná plocha: 85 m²
Dispozice: 4+kk / 4+1
Bennet
KANADSKÉ SRUBY TÁBOR, s.r.o.
Užitná plocha: 177 m²
Dispozice: 5+kk / 5+1
RD Mnichovice
EKOPANELY SERVIS s.r.o.
Užitná plocha: 124.3 m²
Dispozice: 3+kk / 3+1
Moderní roubenka v trampské osadě
OK PYRUS, s.r.o.
Užitná plocha: 117 m²
Lesníkova roubenka
EKOPANELY SERVIS s.r.o.
Užitná plocha: 260 m²
Dispozice: 5+kk / 5+1
Pavo 111 - dřevostavba na klíč
A T R I U M, s.r.o.
Užitná plocha: 111.03 m²
Dispozice: 5+kk / 5+1
Ekologická dřevostavba
EKOPANELY SERVIS s.r.o.
Užitná plocha: 128 m²
Dispozice: 3+kk / 3+1
Dům venkovského stylu
EKOPANELY SERVIS s.r.o.
Užitná plocha: 153 m²
Dispozice: 4+kk / 4+1
Dřevostavba roku - archiv
Copyright © 2026 Českobrodská 35, 190 12 Praha 9 - Dolní Počernice Kontakt
