Ilona a Tomáš neměli s bydlením problém. Žili s dvěma dětmi v pěkném
zděném domě nedaleko Prahy a sousedé i městečko samotné jim náramně „sedlo". Přesto se rozhodli, že svůj milovaný, jen pár let starý dům opustí, a postaví si nový ve Slezsku. Proč zvolili dřevostavbu a jak to, že neměli obavy z realizace, o tom se Tomáš nadšeně rozpovídal.
Trochu s podivem, že jste opustili zánovní dům a šli na druhý konec republiky postavit dřevostavbu. Co vám chybělo?
Ono je to trochu pragmatičtější, než to vypadá. Jednak jsem tam získal zajímavější práci, přesně řečeno jsem přešel z nadnárodní firmy do rodinné. Druhým důvodem bylo otevření excelentní školy pro naše děti v Ostravě, a pak máme ve Slezsku rodiče a být jim na blízku, až nás budou potřebovat, nám přislo správné.
Sehnat v oblíbené rezidenční oblasti Ostravy pozemek asi není jednoduché?
To jistě ne. Původně vybraný, ideální pozemek leží asi pět set metrů od stávajícího. Naším záměrem bylo postavit dům vyprojektovaný architektem na míru. Dům měl být zakopaný ve svahu s využitím lesa místo zahrady, s výhledem na město a pasoucí se koně z nedalekých stájí. Bohužel byrokratické zábrany ze strany úřadu nám znemožnily postavit takový dům v rozumném čase. Jen pro zajímavost, na sousední parcele se podařilo získat stavební povolení až po více než šesti letech úsilí. Takže jsme začali hledat už hotový dům ke koupi. Jenže výběr byl v roce 2011 nesrovnatelně menší než v okolí Prahy a žádný nebyl podle našich představ. Staré zanedbané domy, dále domy stavěné svépomocí „na krev" na straně jedné a podnikatelské baroko z devadesátých let na straně druhé.
Když už jsme našli zajímavý dům, tak se objevil problém typu věcné břemeno, průsak vody, vznikající komerční zóny v okolí a podobně. Ale jak se říká: Pod svícnem bývá největší tma, a tak jsme nakonec postavili na pozemku, který původně vlastnili rodiče. Je sice obklopený hustou zástavbou, ale rodiče ho koupili právě proto, aby si vedle jejich domku nikdo další dům nepostavil. Nám naštěstí vyšli vstříc, a tak nyní bydlíme vedle sebe.
Dřevostavba byla jasná volba?
Vzhledem k rychlosti realizace bylo jasné, že budeme stavět dřevostavbu. Jak nám později řekl jeden soused v nadsázce: „Jedu na šichtu, vidím louku. Jedu zpět a na louce stojí váš barák."
Měli jste obavy z realizace?
Obavy jsme neměli. Nebyl to náš první dům.
Myslím třeba z toho, že nevyberete správnou firmu...
Vycházeli jsme ze zkušeností našich přátel a příbuzných. Ohlasy na vybraného dodavatele stavby byly pozitivní. Stejně jako většina ohlasů na fóru majitelů domů postavených vybranou firmou. Možná jsme trochu pochybovali, zda je možné postavit dům tak rychle a v solidní kvalitě. Po návštěvě několika vzorových domů firmy od Mnichova Hradiště až po Ostravu bylo rozhodnuto. Nejtěžší bylo najít znovu síly a jít opět do toho. Přeci jen neuplynula příliš dlouhá doba od kolaudace předchozího domu.
Která kritéria hrála dřevu do karet – cena, energetická nenáročnost, rychlost výstavby...?
Jednoznačně rychlost, dispozice, vzhled a poměr výkon – cena. Rádi cestujeme. Děti dojíždějí do školy v Ostravě, mají i různé mimoškolní aktivity v jejichž rámci opět cestují, tedy abychom ušetřili co nejvíce času, který bychom si užili v kruhu rodinném, chtěli jsme postavit dům na klíč, se vším všudy. Chtěli jsme řešit případné reklamace pouze na jednom místě a neběhat od čerta k ďáblovi, jak jsme v našem okolí už zažili. Kromě toho velká část potenciálních subdodavatelů dosud neměla zkušenost s montovanou dřevostavbou a jejími specifiky. Cenový rozdíl v nabídkách nebyl natolik významný, abychom to vůbec zvažovali. Subdodavatelsky jsme tedy řešili jen plot, dlažbu a terasu.
Měli jste o domě přesnou představu nebo se tříbila průběžně?
Z hlediska stylu a dispozic jsme měli poměrně rychle jasno – dům z panelů, který nám opět sedl, jsme vybrali v katalogu dodavatele.
Řešili jste nějaký oříšek? Co vám dělalo největší starosti?
Nepřálo nám počasí a byl malý zázrak, že se podařilo dokončit základovou desku včas. Den před zahájením montáže domu (Velikonoce 2013) napadl sníh. A klobouk dolů před řidiči kamionů, kteří přepravují části domů. V relativně úzkých pravoúhlých uličkách naší čtvrti to bylo o centimetrech a jejich umu.
Co vám působí radost? Na co jste se nejvíce těšili?
Nejcennější na našem domě je blízkost rodičů a pak díky několikaměsíčnímu pobytu v pronajatém bytě, do doby dostavení domu, si náš nový domov o to více vychutnáváme. Původní dům u Prahy byl podobných rozměrů a stylu, ale by vytápěný plynem. Jsme příjemně překvapeni podstatně nižšími náklady za vytápění. Máme podlahové elektrické topení a vlastně vše jede na elektřinu včetně pohonu garážových a vjezdových vrat a NAS serveru, a roční spotřeba energie činí jen 15,71 MWh z toho 14,87 MWh běží v nočním, levnějším tarifu.
Alternativní zdroj energie tedy nevyužíváte?
Ne, vzhledem k úspornosti dřevostavby nám to přišlo zbytečné.
A máte dům třeba napojený na centrální řídicí systém?
Chytrý dům nemáme, centrálně ovládáme pouze topení a lze to i na dálku přes internet.
Změnili byste něco, pokud byste stavěli potřetí?
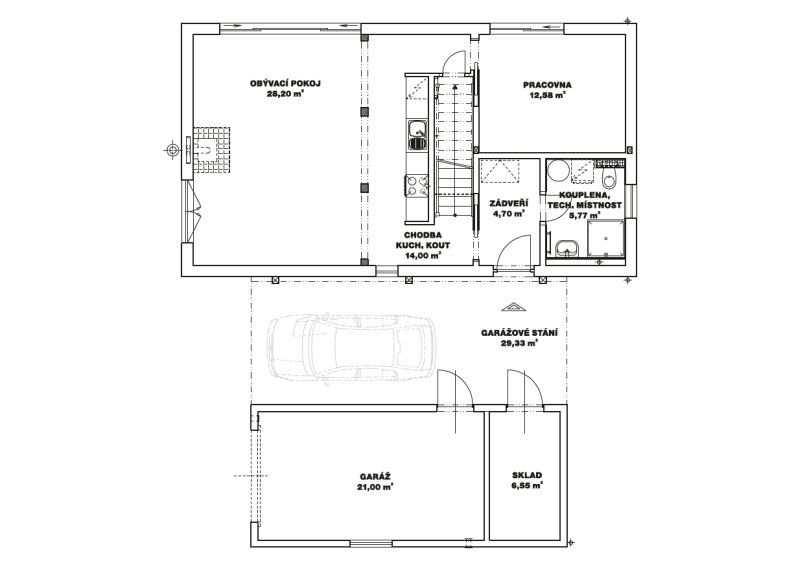
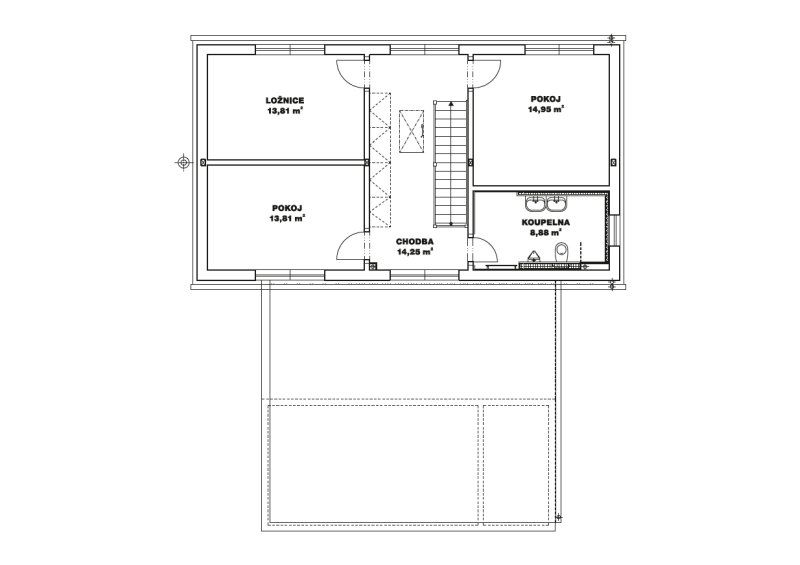
Při výběru domu a pozemku jsme si byli vědomi všech výhod i nevýhod naší volby. Dům funguje dobře, byl postaven rychle a bez vážnějších závad. Realizátor stavby s námi komunikuje a na naše podněty reaguje. Ale přeci jen jednu slabinu dům má – chybějící technickou místnost. Víme, že některé typové domy Locus tuto místnost mají, ale na úkor pracovny. My jsme se nechtěli vzdát této víceúčelové místnosti, která nám slouží jako pracovna, místnost pro přespání hostů, poslechová místnost, kinosál a tělocvična s eliptickým trenažérem. Jedná se vlastně o „dětský pokoj" hlavy rodiny. Prostor ke zlepšení vidíme ve sladění vytápění, řídící jednotky a ovládání. Jako uživatelům APPLE produktů se nám zdá poněkud komplikované a uživatelsky nepřívětivé.
Technické parametry
Typ domu: energeticky efektivní, typový Locus 109 s individuálními úpravami
Zastavěná plocha: 145,19 m2
Užitná plocha: 134,85 m2
Konstrukční systém: prefabrikované stavební díly
Teplo: elektrické podlahové topení Fenix, doplněné v kouplenách otopnými žebříky, elektrický ohřívač vody
Větrání: přirozené
Součinitel prostupu tepla stěnou v době stavby: 0,164 W/m2.K
Dešťová voda: retenční nádrž s drenážním podmokem, využítí k zalévání
Interiérový konzultant: Ing. arch. Agata Vančó Kiszka
Projekt a realizace: 2013, RD Rýmařov s. r. o., www.rdrymarov.cz
Rodinný dům 307 - dřevostavba na klíč
MARTINICE GROUP s.r.o.
Užitná plocha: 130 m²
Dispozice: 5+kk / 5+1
EKONOMY MS 04 - dřevostavba na klíč
MS HAUS s.r.o.
Užitná plocha: 85 m²
Dispozice: 4+kk / 4+1
Pavo 111 - dřevostavba na klíč
A T R I U M, s.r.o.
Užitná plocha: 111.03 m²
Dispozice: 5+kk / 5+1
Rodinný dům Tábor - dřevostavba na klíč
ALFAHAUS s.r.o.
Užitná plocha: 137 m²
Dispozice: 4+kk / 4+1
Moderní roubenka v trampské osadě
OK PYRUS, s.r.o.
Užitná plocha: 117 m²
Bennet
KANADSKÉ SRUBY TÁBOR, s.r.o.
Užitná plocha: 177 m²
Dispozice: 5+kk / 5+1
Futura Freestyle - dřevostavba na klíč
Prodesi I Domesi
Užitná plocha: 107.8 m²
Dispozice: 3+kk / 3+1
Nízkoenergetická dřevostavba
EKOPANELY SERVIS s.r.o.
Užitná plocha: 115 m²
Dispozice: 4+kk / 4+1
Dům se sloupy z douglasky
ARCHCON atelier, s.r.o., DŘEVOSTAVBY BISKUP, s.r.o.
Užitná plocha: 118.44 m²
Dispozice: 4+kk / 4+1
Ekologická dřevostavba
EKOPANELY SERVIS s.r.o.
Užitná plocha: 128 m²
Dispozice: 3+kk / 3+1
Lesníkova roubenka
EKOPANELY SERVIS s.r.o.
Užitná plocha: 260 m²
Dispozice: 5+kk / 5+1
Optimal 02 - dřevostavba na klíč
PENATUS s.r.o.
Užitná plocha: 124 m²
Dispozice: 4+kk / 4+1
Chata v Jizerských horách - dřevostavba na klíč
3AE s.r.o.
LUCERN 116 - dřevostavba na klíč
LUCERN dřevostavby s.r.o.
Užitná plocha: 103.1 m²
Dispozice: 4+kk / 4+1
Dům venkovského stylu
EKOPANELY SERVIS s.r.o.
Užitná plocha: 153 m²
Dispozice: 4+kk / 4+1
Dřevostavba roku - archiv
Copyright © 2026 Českobrodská 35, 190 12 Praha 9 - Dolní Počernice Kontakt
