Dagmar Šimonová | Čtvrtek, 06. červen 2013 |
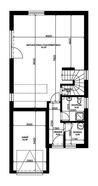
Rodinný dům UNO 160G od společnosti DIREKT REAL s.r.o. je určený ideálně pro 4 člennou rodinu. Dělení domu je do dvou nadzemních podlaží. V přízemí domu je umístěná garáž a hlavní obývací pokoj, dále koupelna a technická místnost. Podle potřeby investora lze tyto místnosti upravit.
![]()
V patře rodinného domu je vytvořený prostor pro 4 ložnice a koupelnu. Dispozice druhého patra lze upravit podle potřeb tak, aby spojením dvou menších ložnic vznikla jedna ložnice velká. Nově vzniklou velkou ložnici je možné dispozičně poupravit a vytvořit šatnu, nebo zvětšit koupelnu.
Konstručkní systém rodinného domu
Skeletový systém domu je realizovaný přímo na staveništi (Two by Four). Konstrukční prvky: sendvič KVH hranoly, vyplněny minerální tepelnou a zvukovou izolací a opláštěny sádrovláknitými deskami. Podle požadované energetické náročnosti budovy zvolená tloušťka tepelné izolace KZS. Upřednostňujeme kvalitně provedenou difuzně uzavřenou skladbou s důslednou kontrolou „blowerdoor testu". Doporučujeme rovnotlaké větrání s rekuperací.
Více informací si můžete zjistit na kartě projektu nebo na stránkách výrobce.
Projekty a realizace dřevostaveb
Na našich webových stránkách v sekci Projekty a realizace dřevostaveb naleznete mnoho projektů, realizací i vzorových domů od mnoha dodavatelů, ze kterých si můžete v přehledné databázi vybrat. Při realizaci vašeho nového domu se vám bude hodit i náš Adresář firem pro stavbu a vybavení, jehož papírovou obdobu - Adresář výrobců a dodavatelů dřevostaveb pro bydlení - rozdáváme zdarma na stavebních veletrzích.
Další projekty z adresáře si můžete prohlédnout ZDE!
Vaše komentáře (0)Nejnovější články v kategorii “Aktuálně”
-
NOVATOP na FOR WOOD 2026: dřevo je především o lidech a vztazích
Značka NOVATOP bude i letos součástí veletrhu FOR WOOD 2026, který dlouhodobě vnímá především jako místo osobních setkání s partnery, architekty, investory i koncovými zákazníky se…
-
Stavby s vůní dřeva: nový dokumentární film jde do televizního vysílání
Dřevo jako moderní, udržitelný a technologicky vyspělý stavební materiál představuje nový dokumentární film Stavby s vůní dřeva, který vznikl na Fakultě lesnické a dřevařské…
-
Vstupenky zdarma na stavební veletrh FOR WOOD a FOR PASIV 2026
Jít na největší stavební veletrh FOR WOOD a FOR PASIV se vstupenkou ZDARMA? S námi je to možné! Stáhněte si vstupenku zdarma už teď!
Veletrhy FOR PASIV a FOR WOOD 2026: energeticky úsporné bydlení – výhody a novinky















Vytvořeno v xart.cz