Petra Vaňková | Pondělí, 04. květen 2015 |
Rostoucí dřevostavba PLAY od společnosti NATUR HOUSE je ideální volbou pro ty, kdo chtějí kvalitní bydlení, z počátku nechtějí investovat finanční částky do velkého rodinného domu, ale do budoucna budou chtít prostory rozšiřovat. Bungalov sám o sobě dává možnost postupného modulového navazování a zvětšování stávajících dispozic.
Rodinné modulové domy PLAY můžete z dispozice 2+1 o užitné ploše 59 m2 rozšířit až na 4+1 s celkovou užitnou plochou 87 m2. Zároveň lze postupně dřevostavbu doplnit také o garážové stání.Další výhodou rostoucích bungalovů PLAY je jejich architektonická variabilnost. Tyto domy mohou mít klasický vzhled s pultovou střechou nebo moderní minimalistické pojetí se střechou rovnou. Různý materiálový obklad jako je dřevo, dřevoplast, kámen apod. dodá vašemu domu na originalitě a vy si tak vytvoříte dům podle svých představ.
Propojení dřevostavby se zahradou
Prostorné zádveří, komfortní obývací část s kuchyní a jídelním koutem, ložnice, koupelna a technická místnost, které jsou součástí základního provedení dřevostavby PLAY, mohou být skvělým základem pro první vlastní bydlení nebo víkendový pobyt. Prosklená jižní stěna přináší do obytné části více světla a propojuje ji s terasou a zahradou.
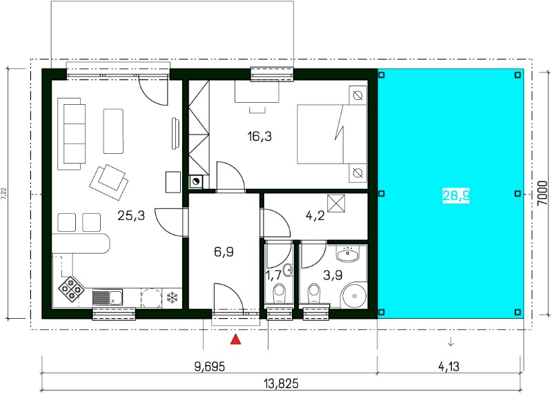
Pro ty z vás, kteří již nepotřebují větší prostory k bydlení, avšak ocení doplňující technické zázemí nebo garážové stání, máme připravený modul PLAY 1 zvětšený o 29 m2. Tento prostor lze variabilně uzpůsobit dle vašich požadavků a fantazie. Připojit k němu můžeme základní otevřené garážové stání nebo prostor uzavřít bočními screenovými roletami, které ho ochrání před slunečním zářením, deštěm a prachem. Dům je možné také vybavit kvalitní uzavřenou garáží s vjezdovými vraty či nechat toto místo pro technické zázemí, které poskytne úložný prostor pro dřevo, zahradní vybavení a sportovní potřeby.
Rozhodnete-li se pro rostoucí dispoziční zvětšení domu, pak modul PLAY 2 rozšiřuje obytný prostor na 3+1 o další prostorný pokoj o užitné ploše 25 m2, který vám umožní dostatečné soukromí a je stranou od společenské části domu.
Modul PLAY 3 rozšiřuje bungalov o dva dětské pokoje, které jsou od sebe odděleny toaletou. Dřevostavba PLAY 3 s dispozicí 4+1 se takto zařadí mezi moderní rodinné domy, jež splní požadavky čtyřčlenné rodině za velmi výhodných postupných investic.
Prohlédněte si naši vzorovou dřevostavbu v Němčicích u Pardubic
Rodinný dům PLAY je větší variantou STUDIA, které si jako vzorovou dřevostavbu můžete prohlédnout v Němčicích u Pardubic. Během prohlídky vám ukážeme kvalitu zpracování našich dřevostaveb a možnosti postupné modulové výstavby.
Vaše komentáře (0)Nejnovější články v kategorii “Aktuálně”
-
NOVATOP na FOR WOOD 2026: dřevo je především o lidech a vztazích
Značka NOVATOP bude i letos součástí veletrhu FOR WOOD 2026, který dlouhodobě vnímá především jako místo osobních setkání s partnery, architekty, investory i koncovými zákazníky se…
-
Stavby s vůní dřeva: nový dokumentární film jde do televizního vysílání
Dřevo jako moderní, udržitelný a technologicky vyspělý stavební materiál představuje nový dokumentární film Stavby s vůní dřeva, který vznikl na Fakultě lesnické a dřevařské…
-
Vstupenky zdarma na stavební veletrh FOR WOOD a FOR PASIV 2026
Jít na největší stavební veletrh FOR WOOD a FOR PASIV se vstupenkou ZDARMA? S námi je to možné! Stáhněte si vstupenku zdarma už teď!
Veletrhy FOR PASIV a FOR WOOD 2026: energeticky úsporné bydlení – výhody a novinky













Vytvořeno v xart.cz