Dana Jakoubková | Pátek, 18. listopad 2016 |
Kdyby u tohoto rodinného domurostly palmy, věřila bych, že je někde ve Středomoří. Tato pasivní dřevostavba ale stojí ve vesnici na úpatí Malých Karpat a je krásnou ukázkou toho, že ani pasivní standard nemusí sledovat architektonické stereotypy.
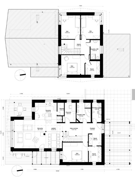
Dvoupodlažní dispozice domu preferuje praktičnost a šetrnost. Jednoduché a účelné řešení odpovídá trendu dnešních nároků na bydlení a přitom si zachovává nestandardní, až fascinující tvář, která utváří domov čtyřčlenné rodině.
Přečtěte si také: Výhody dřevostavby a srovnání se zděným domem
Základním stavebním systémem domu jsou masivní dřevěné prvky. Jeho specifikem je pak použití hliněných nepálených cihel a omítnutí většiny stěn interiéru, a to i v koupelně, hliněnou omítkou na rákosovém podkladu. S tím souvisí i oblé rohy stěn, tak typické pro přírodní stavitelství. Ve stropě jsou dokonce uloženy hliněné cihly pro zlepšení akustiky a regulace vlhkosti. I za výše uvedených okolností ovšem dům splňuje všechny podmínky pasivní stavby – měrnou spotřebu tepla i spotřebu primární energie. Bydlení v pasivním domě by tedy nemělo být o nic méně pohodlné a příjemné než ve standardní dřevostavbě, a není ani nutné ustupovat z požadavku na osobitost.
Technické parametry
- Zastavěná plocha: 156 m2
- Užitná plocha: 185 m2
- Spodní stavba: železobetonová základová deska, pěnové sklo 40 cm
- Konstrukční systém: masivní dřevěné panely Lignotrend UNI Q3, rámová konstrukce Steico Wall 300 mm
- Tepelná izolace: foukaná celulóza
- Fasáda: dřevovláknité desky Steico + tenkovrstvá omítka
- Střešní krytina: pálená taška Tondach
- Okna: dřevohliníková, izolační trojsklo U=0,6 W/m2K
- Podlahy: dřevěné
- Teplo: teplovzdušné, jednotka Aerosmart X, nástěnná topidla, krbová kamna
- Větrání: řízené s rekuperací tepla Smart Went
- Roční měrná potřeba tepla: 14 kWh/m2
- Projekt a realizace: Createrra s.r.o., 2014
Doporučujeme: Mýty o pasivních dřevostavbách
Vaše komentáře (0)
Nejnovější články v kategorii “Pasivní domy”
-
České bateriové stanice HES s kapacitou až 41,1 kWh snižují díky spotovému nakupování cenu elektrické energie
Střešní solární elektrárny na rodinných domech se pomalu stávají v Česku standardem a zájem výrazně zvýšila i rostoucí cena energií. S vlastní fotovoltaikou zákazníci šetří…
-
Navštivte pasivní rodinný dům, který se testuje za provozu
O světě pasivních a nízkoenergetických rodinných domů koluje řada mýtů a polopravd. Je lepší zvolit difúzně otevřený nebo uzavřený konstrukční systém? Jaké materiály je vhodné…
-
Petr Dusil: Cílem není pouze pasivní, ale kvalitní dům
Současná doba je takovým ukazatelem naší připravenosti na změny a krize mnoha odstínů. Jak si v jejich světle stojí současné stavebnictví, v posledních letech postavené rodinné domy…
-
Radon v pasivních domech
O radonu jako život ohrožující látce se hovoří už poměrně dlouho. Tento radioaktivní plyn vzniká přeměnou uranu a radia v zemské kůře a sám se přeměňuje na další radioaktivní…













Vytvořeno v xart.cz