Redakce | Pondělí, 18. prosinec 2023 |
Cest k dřevostavbě vede jistě vícero, Renatin příběh je ale naprosto ukázkovým příkladem toho, jak dřevostavba svými logickými argumenty dokáže donutit zastavit se a poslouchat. Potom vzít za kliku a vejít dovnitř. A nadechnout se. I tak málo totiž stačí, aby se zrodila láska na celý život.
Celý život jsem strávila v bytě a postavit si svůj vlastní dům byl takový můj dětský sen. A nejen můj. To, že se jednou přestěhujeme do pěkného domu, plánovali už moje rodiče. Stavbu bych tedy s nadsázkou označila za takové naplnění rodinných přání. Dřevostavba stojí už od roku 2017 a v době, kdy jsme začali hledat pozemek a přemýšleli o tom, jak bude dům vypadat, neměly ještě dřevostavby tak dobrou pověst. Respektive na realitním trhu cena dřevostavby s léty klesala, zatímco u zděných domů narůstala. Navíc jsem profesí stavař, a i já se musím přiznat, že jsem tehdy vnímala dřevostavbu jako takovou horší alternativu zděného domu. Ale okolnosti nás nasměrovaly právě k této dřevostavbě a nakonec zvítězily argumenty jak objektivní, tak subjektivní, a já jsem dneska opravdu moc ráda, že jsme se takhle rozhodli.
Jednou do dřevostavby a už nikdy jinak
Na stavbu domu jsme tenkrát totiž poměrně dost spěchali. I proto jsme byli rozhodnuti, že půjdeme cestou typového domu, u kterého se velmi významně zkrátí čas projektování. Vybrali jsme si pozemek v CHKO a hledali tedy takový projekt, který by poměrně přísná kritéria splňoval. A tak mi v mailu jednou přistál odkaz právě na typový projekt Freestyle, na který kamarád architekt náhodou narazil.
Začala jsem se tedy o tento dům zajímat a hodně mě překvapil poměr cena/výkon, ale i velký objemový komfort, protože díky konstrukčnímu systému z masivních dřevěných panelů je například úžasně využitý prostor v podkroví, kde nepřekáží žádný krov. Svou roli samozřejmě hrála i rychlost výstavby, která strčila zděný dům do kapsy, a v neposlední řadě také osobní návštěva ve vzorovém domě v Pulečném, kde na mě poprvé po otevření dveří dýchlo klima dřevostavby a tak jsem si řekla, že tohle bude dobrá cesta.
Jenže než jsme se rozhoupali, pozemek nám pod nosem vyfoukl jiný zájemce a my tak museli hledat nanovo. Pak jsme narazili na tohle místo a okamžitě jsme věděli, že není vůbec nutné nic řešit znovu, že zkrátka vybraný projekt usadíme do zdejší vzrostlé zahrady. Sousedíme převážně s rekreačními objekty a domy menšího měřítka, takže sem dřevostavba Freestyle krásně zapadne.
Hezky to ilustruje i zážitek, který jsem měla s místním stavebním úřadem, který projekt schvaloval. Zavolala mi naše referentka, jestli bych si nemohla schválený projekt vyzvednout o týden později, protože právě koluje po celém úřadě jakožto ukázkový projekt, jak by stavba v této oblasti měla vypadat, v lidském měřítku a adekvátní k místu i pozemku.
Pořádek na stavbě
Celá výstavba proběhla v moc příjemném duchu. Dalo by se předpokládat, že jako člověk „od fochu" budu rýpavá a kritická, ale nebylo co vytknout. Projekt měl velmi dobře navržené veškeré detaily, které byly i při stavbě precizně dodržené, což dnes rozhodně nebývá samozřejmostí. Navíc mě na dřevostavbě překvapila i čistota a příjemná atmosféra celého staveniště.
Dům byl ihned po dokončení útulný, stěhovali jsme se opravdu hned – doslova poslední profesanti odjížděli ve stejnou chvíli, kdy před domem parkoval stěhovací vůz – a přesto to nebylo vůbec nijak nepříjemné. Úsměvnou historkou je pak hubování od paní, která zastřešovala objednaný úklid po stavbě, že jsme to přeci měli nechat být tak, jak odešli dělníci. Přesně tak jsme to ale udělali, přestože ona měla pocit, že jsme určitě museli uklízet.
Slovo dodavatele
Samotný dům je typová dřevostavba, kterou stavíme už více jak 13 let a v Čechách a na Slovensku jich stojí kolem sedmdesátky. I když je Freestyle promyšlené a léty prověřené řešení, je přizpůsobitelné požadavkům klientů. Vzhledem k tomu, že jsme architektonický atelier a zároveň realizační firma, veškeré změny v projektu probíhají vždy s architektem a dům tak neztrácí nic ze své estetiky. Ani tento dům není standartní Freestylkou – například na první pohled má oproti standardní verzi terasu umístěnou podél domu – směrem do zahrady. Změněná je i vnitřní dispozice tak, aby klientům dům co nejvíce vyhovoval. Jsme rádi, že jsme se sem mohli po letech vrátit a přesvědčit se na vlastní oči, že se majitelům v domě bydlí dobře.

Michal Kotlas
Prodesi/Domesi s.r.o.
Úsporná i voňavá dřevostavba
Rozhodně bych dnes už o dřevostavbě nepochybovala. Je tu tak neuvěřitelně příjemné klima, které postrádám okamžitě, jak vstoupím do zděného domu. Vůni dřeva už tu samozřejmě necítím, ale všechny příchozí návštěvy ji neopomenou zmínit. Spokojená jsem koneckonců i s energetickou bilancí – po dokončení hrubé stavby jsme si nechali udělat blower door test, který prokázal, že je stavba vzduchotěsná na úrovni pasivního domu.
Loňskou zimu jsem tak třeba ani jednou nemusela zapínat přímotopy, bohatě stačila krbová kamna, ve kterých jsem ztopila okolo pěti kubíků dřeva. Určitě bych mohla topit mnohem efektivněji a nepřetápět, což se mi občas podařilo. Když se ohlédnu zpátky, nedělala bych při ladění projektu tolik kompromisů. Byly to všechno jen drobnosti, ale vlastně je mi líto, že jsem si je neprosadila nebo na nich víc netrvala. Na druhou stranu musím ocenit přístup projekční i realizační firmy, že byli ochotní se mnou jít i do detailů, které neměli odzkoušené a tím pádem pro ně logicky představovaly určité riziko.
Tím bylo třeba položení dlažby v přízemí, která by v tak velké ploše měla mít dilatační spáry, což by se ale propsalo v řešení interiéru. Panovala tak určitá obava, že by dlažba mohla vlivem dotvarování domu popraskat, ale nestalo se tak. I když dům opravdu dost pracoval, hlavně první rok po dokončení. Často se ozývalo poměrně hlasité lupání a praskání, jak si všechno postupně sedalo.
Provozní manuál
Jak už jsem říkala na začátku, dům je takovým splněným rodinným snem, a tak i slouží. Často na víkendy odjíždím pryč, ale skoro vždycky se najde někdo, kdo sem rád zajede a stráví tu pár dní i bez mojí přítomnosti. Často tu mívám společnost dětí, což vždy prověří fungování domu. Mám udělaný takový univerzální provozní manuál, podle kterého se návštěvníci mohou orientovat, a funguje to perfektně. To je ostatně tím nejlepším potvrzením toho, jak dobře se tady žije.

Tato dřevostavba soutěží v anketě DŘEVOSTAVBA ROKU 2023
Pomozte nám zvolit nejhezčí dřevostavby! Tato dřevostavba se uchází o váš hlas v anketě Dřevostavba roku 2023 pod názvem "Splněný rodinný sen". Hlasujte do 30.12. 2023 v tomto kole a získejte atraktivní ceny...
Hlasovat v anketě
Technické parametry
- Typ domu: nízkoenergetický
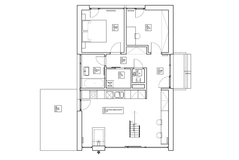
- Zastavěná plocha: 93 m2 (terasa 15 m2)
- Užitná plocha: 134 m2
- Dispozice: 4+kk
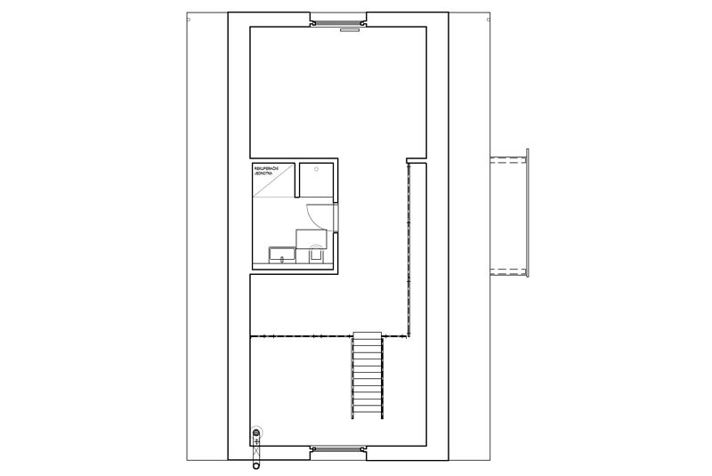
- Konstrukční systém: systém NOVATOP
- Teplo: elektrické přímotopy, podlahové vytápění, krbová kamna
- Větrání: řízené s rekuperací
- Součinitel prostupu tepla stěnou: U = 0,21 W/m2.K
- Projekt: 2016, Prodesi, s.r.o.
- Realizace: 2017, Domesi, s.r.o., www.domesiconcepthouse.cz
AUTOR ČLÁNKU: Dagmar Česká pro časopis DŘEVO&stavby
Vaše komentáře (0)Nejnovější články v kategorii “Návštěvy dřevostaveb”
-
Zrcadlová roubenka na soutoku
Majitel této roubenky – říkejme mu třeba Martin – měl jasný cíl: postavit svým dospělým dětem dům, kam by mohly o víkendech jezdit a být mu tak i s vnoučaty nablízku. A aby to…
-
Dřevěný domov v krajině rozlehlých luk
Tento příběh připomíná dokonalou pohádku o tom, kterak Kateřina a Jiří našli svůj vytoužený klid v podhůří Krkonoš. Jejich pozemek o rozloze dvaceti tisíc metrů čtverečních je…
-
Dávno splněný sen v podobě patrové dřevostavby na míru
Některé plány a nápady potřebují čas, aby mohly uzrát. Hluboko zapustit kořeny a trpělivě čekat na tu správnou dobu. Jako v tomto případě – poprvé totiž Milan na „svou"…
-
Dřevěná vila schoulená v náručí krajiny
Každý dům nevyhnutelně mění krajinu – jakým způsobem, to už záleží na jeho majitelích. Některé stavby přetvářejí okolí podle svého obrazu, jiné se naopak snaží splynout. A…
























Vytvořeno v xart.cz