Jindřiška Kleknerová | Pátek, 03. listopad 2017 |
Je totiž plná funkčních a zároveň i designu lahodících nápadů. Tak proč bychom některý z nich nemohli použít. Když už tedy ne všechny.
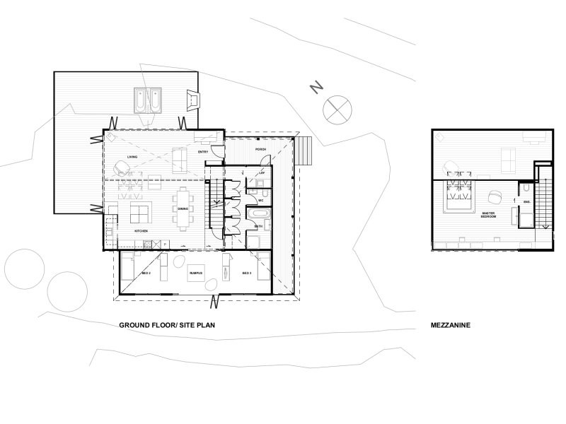
Menší stavbu ze severní části Nového Zélandu můžeme nazývat pracovně chatou, i když to autorce textu příliš nevyhovuje. Pod tímto pojmenováním má totiž spojené hlavně prkenné chatky z Posázaví nebo Vlašimska, ve kterých se snoubí kumšt českého kutila a střídmost, se kterou muselo být k těmto typickým českým dřevostavbám přistupováno.
Tato novozélandská patrová stavba s terasou a venkovním krbem pak s touto vzpomínkou ne příliš dobře koresponduje, se střídmostí už vůbec ne.
Na stavbu chaty, která má sloužit jako rekreační objekt pro čtyřčlennou rodinu, bylo (tak jako často v české kotlině) použito výhradně místních materiálů.
Využití přírody je tak cítit i na dálku, stavba ze zevního pohledu zapadá to zeleného okolí, z pohledu vnitřního pak už uklidňuje docela, a to především nevýraznými, ryze přírodními barevnými tóny i materiály.
Proskleno je všude, směr vyhlídky z hlavní strany obývací zóny je na dvě strany, skleněné plochy lze snadno otevřít. Tolik používaný výraz propojení vnitřku domu s okolím se zde opět zdá být nedostatečný.
Po bližším prohlédnutí fotografií najde pozorný čtenář příhodné detaily – například řešení pracovní plochy pro přenosné počítače u všude přítomného okna v ložnici, se jeví jako velmi příhodné.
Místa a světla je tu dost, radost z práce a dostatek inspirace se už jistě dostaví.
Najděte si i vy svůj detail nebo dobře řešený kout a zkuste ho vetknout do vaší chatky – ať už se nachází kdekoliv.
Místo a rok realizace: Puhoi, Nový Zéland, 2016
Obytná plocha: 164m²
Fotografie: Jo Smith
www.ltdarch.co.nz
Vaše komentáře (1)
Nejnovější články v kategorii “Zajímavosti”
-
Studio Schwestern: Dřevo umí stárnout hezky
Dětství ve firmě Profil Nábytek se na obou sestrách podepsalo v tom nejlepším slova smyslu. Tatínek František Čermák, jeden ze spoluzakladatelů, své děti do dílny vodil často, byť…
-
Rozebrat, oživit, použít znovu aneb recyklace dřevostaveb v praxi
V každém čísle přinášíme příběhy dřevostaveb, zaměřujeme se ale zejména na jejich plánování a výstavbu. Kvalitně postavený a dobře udržovaný dům ze dřeva pak může sloužit…
-
Budoucnost dřevostaveb očima odborníků
V čísle 6/25 časopisu DŘEVO&stavby jsme přinesli výpovědi 12 odborníků z lesnicko-dřevařského oboru. V posledním dílu našeho ročního seriálu o lese, dřevu a jeho zpracování nám…
-
Tadeáš Salaba: StaGram stavební gramotnost do škol zdarma
Na nedostatek kvalifikovaných pracovníků na různých technických i dalších odborných místech (nejen) v dřevostavitelství narážíme v rozhovorech s lidmi napříč oborem. Často si…




















Vytvořeno v xart.cz