| Název: | Dům 110 - dřevostavba na klíč |
| Kategorie: | Projekty dřevostaveb - katalog dřevostaveb na klíč |
| Společnost: | ALLSTAV CZ s.r.o. |
| Počet podlaží: | jednopodlažní |
| Generačnost: | jednogenerační |
| Konstrukční systém: |
|
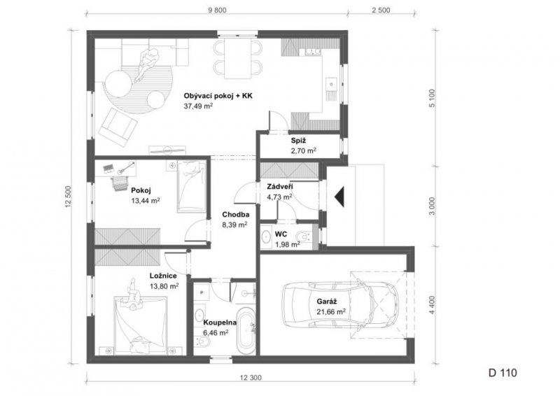
| Obytná plocha: | 110,00 m² |
| Zastavěná plocha: | 141,00 m² |
| Dispozice: | 3+kk / 3+1 |
Aktuální ceny naleznete na stránkách, případně na dotaz u prezentované společnosti.
Přízemní rodinný dům, který nabídne dostatek prostoru pro bydlení i parkování osobního auta.
Vše pod jednou střechou nabízí bungalov s číslem 110. Dům s prostorným krytým vchodem i garáží pro auto. Bungalov si volí investoři jako bezbariérové řešení bydlení pro seniorský věk, ve kterém je ale dostatečný prostor v samostatném pokoji pro návštěvu vnoučat, nebo mladé rodiny. Samostatná místnost s rozměry 13,5 m2 může sloužit jako pracovna, dětský pokoj, šicí nebo ruční dílna či relaxační prostor. Obývací pokoj spojený s kuchyňským koutem a spižírnou hned vedle linky neizolují kuchaře či kuchařku mimo hlavní ruch života.
|
Oznámkujte |
Oblíbené: 0 |
|
Pavo 111 - dřevostavba na klíč
A T R I U M, s.r.o.
Užitná plocha: 111.03 m²
Dispozice: 5+kk / 5+1
Rodinný dům Tábor - dřevostavba na klíč
ALFAHAUS s.r.o.
Užitná plocha: 137 m²
Dispozice: 4+kk / 4+1
Bennet
KANADSKÉ SRUBY TÁBOR, s.r.o.
Užitná plocha: 177 m²
Dispozice: 5+kk / 5+1
Moderní roubenka v trampské osadě
OK PYRUS, s.r.o.
Užitná plocha: 117 m²
Chata v Jizerských horách - dřevostavba na klíč
3AE s.r.o.
Lesníkova roubenka
EKOPANELY SERVIS s.r.o.
Užitná plocha: 260 m²
Dispozice: 5+kk / 5+1
EKONOMY MS 04 - dřevostavba na klíč
MS HAUS s.r.o.
Užitná plocha: 85 m²
Dispozice: 4+kk / 4+1
Optimal 02 - dřevostavba na klíč
PENATUS s.r.o.
Užitná plocha: 124 m²
Dispozice: 4+kk / 4+1
Rodinný dům 307 - dřevostavba na klíč
MARTINICE GROUP s.r.o.
Užitná plocha: 130 m²
Dispozice: 5+kk / 5+1
Dům se sloupy z douglasky
ARCHCON atelier, s.r.o., DŘEVOSTAVBY BISKUP, s.r.o.
Užitná plocha: 118.44 m²
Dispozice: 4+kk / 4+1
Ekologická dřevostavba
EKOPANELY SERVIS s.r.o.
Užitná plocha: 128 m²
Dispozice: 3+kk / 3+1
Nízkoenergetická dřevostavba
EKOPANELY SERVIS s.r.o.
Užitná plocha: 115 m²
Dispozice: 4+kk / 4+1
Dům venkovského stylu
EKOPANELY SERVIS s.r.o.
Užitná plocha: 153 m²
Dispozice: 4+kk / 4+1
LUCERN 116 - dřevostavba na klíč
LUCERN dřevostavby s.r.o.
Užitná plocha: 103.1 m²
Dispozice: 4+kk / 4+1
Futura Freestyle - dřevostavba na klíč
Prodesi I Domesi
Užitná plocha: 107.8 m²
Dispozice: 3+kk / 3+1
Proč jste na portále DŘEVO&stavby?
Copyright © 2026 Českobrodská 35, 190 12 Praha 9 - Dolní Počernice Kontakt
