| Název: | Dům vody a tónů |
| Kategorie: | Projekty dřevostaveb - katalog dřevostaveb na klíč |
| Společnost: | ATREA s.r.o. / DOMY ATREA |
| Charakteristika domu: |
|
| Počet podlaží: | vícepodlažní |
| Generačnost: | jednogenerační |
| Konstrukční systém: |
|
| Ostatní parametry: |
|
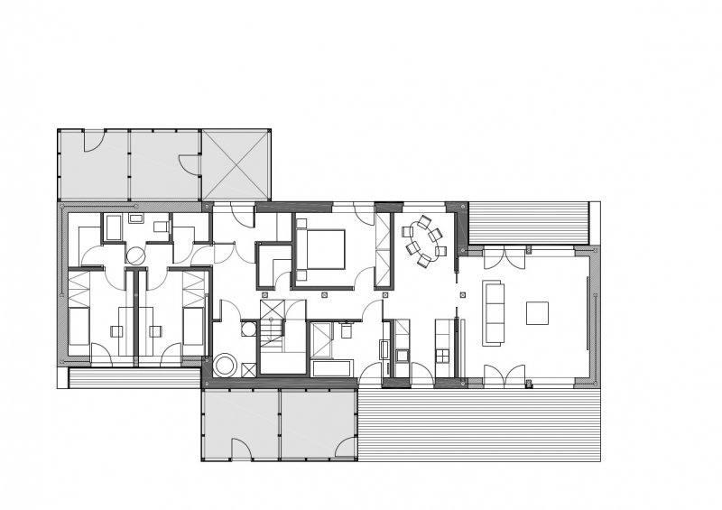
| Podlahová plocha (užitná): | 189,00 m² |
| Zastavěná plocha: | 174,00 m² |
| Dispozice: | 6+kk / 6+1 |
Aktuální ceny naleznete na stránkách, případně na dotaz u prezentované společnosti.
Částečně dvoupodlažní rodinný dům, v podhůří Jizerských hor, pro manželský pár se dvěma menšími dětmi. Dům je umístěn v západní části svažitého pozemku a navazuje na stávající zástavbu. Střední dominantní hmota je zastřešena sedlovou střechou s okny směřujícími na východ s dominantními výhledy na panorama Krkonoš. Na západní straně jsou instalovány fotovoltaické panely. Boční hmoty jsou zastřešeny pultovými střechami s vegetačním souvrstvím, které slouží jako terasy přístupné z podkroví, kde je umístěna pracovna. Hlavní obytnou část tvoří obývací pokoj, kuchyň a jídelna v západním křídle domu. V přízemí je také situována ložnice, koupelna a šatna rodičů. Ve východním křídle jsou umístěny dva dětské pokoje s vlastní koupelnou a šatnou.
Dům je doplněn venkovní saunou, dvěma sklady a dřevěnou terasou, která bezprostředně navazuje na koupací jezírko, které je napájeno z vydatného vodního zdroje na pozemku. Vodu z jezírka odvádí potůček, který protéká rozlehlou permakulturní zahradou do spodní části pozemku, ve které je situován vodní biotop.
Konstrukčně se jedná se o moderní skeletovou dřevostavbu s difúzně otevřenou skladbou obvodových konstrukcí. Stavební řešení, včetně detailů, vychází z uceleného stavebního systému společnosti ATREA. Ve značné míře jsou využity přírodní obnovitelné a recyklované materiály (dřevo, desky na bázi dřeva, celulóza apod.). Na hlavních plochách fasády je použita tenkovrstvá omítka v šedé barvě, doplňující plochy tvoří dřevěný obklad z modřínu.
Energeticky úsporné stavební řešení doplňuje ucelený systém technických zařízení, který zajišťuje komfortní a zdravé bydlení s nízkými provozními náklady. Pro provoz domu jsou přednostně využívány obnovitelné zdroje energie (fotovoltaika, tepelné čerpadlo). Komfortní klima a příjemnou atmosféru ve vzdušném a prosvětleném interiéru pomáhají dotvořit masivní dřevěné podlahy, hudební koutek s pianem, profesionální audio sestava, akustický obklad v hlavní obytné části a vnější žaluzie.
Více o tomto domě na www.domyatrea.cz.
|
Oznámkujte |
Oblíbené: 0 |
|
Futura Freestyle - dřevostavba na klíč
Prodesi I Domesi
Užitná plocha: 107.8 m²
Dispozice: 3+kk / 3+1
Pavo 111 - dřevostavba na klíč
A T R I U M, s.r.o.
Užitná plocha: 111.03 m²
Dispozice: 5+kk / 5+1
EKONOMY MS 04 - dřevostavba na klíč
MS HAUS s.r.o.
Užitná plocha: 85 m²
Dispozice: 4+kk / 4+1
Moderní roubenka v trampské osadě
OK PYRUS, s.r.o.
Užitná plocha: 117 m²
LUCERN 116 - dřevostavba na klíč
LUCERN dřevostavby s.r.o.
Užitná plocha: 103.1 m²
Dispozice: 4+kk / 4+1
Bennet
KANADSKÉ SRUBY TÁBOR, s.r.o.
Užitná plocha: 177 m²
Dispozice: 5+kk / 5+1
Ekologická dřevostavba
EKOPANELY SERVIS s.r.o.
Užitná plocha: 128 m²
Dispozice: 3+kk / 3+1
RD Mnichovice
EKOPANELY SERVIS s.r.o.
Užitná plocha: 124.3 m²
Dispozice: 3+kk / 3+1
Chata v Jizerských horách - dřevostavba na klíč
3AE s.r.o.
Lesníkova roubenka
EKOPANELY SERVIS s.r.o.
Užitná plocha: 260 m²
Dispozice: 5+kk / 5+1
Dům se sloupy z douglasky
ARCHCON atelier, s.r.o., DŘEVOSTAVBY BISKUP, s.r.o.
Užitná plocha: 118.44 m²
Dispozice: 4+kk / 4+1
Rodinný dům Tábor - dřevostavba na klíč
ALFAHAUS s.r.o.
Užitná plocha: 137 m²
Dispozice: 4+kk / 4+1
Dům venkovského stylu
EKOPANELY SERVIS s.r.o.
Užitná plocha: 153 m²
Dispozice: 4+kk / 4+1
Rodinný dům 307 - dřevostavba na klíč
MARTINICE GROUP s.r.o.
Užitná plocha: 130 m²
Dispozice: 5+kk / 5+1
Optimal 02 - dřevostavba na klíč
PENATUS s.r.o.
Užitná plocha: 124 m²
Dispozice: 4+kk / 4+1
Proč jste na portále DŘEVO&stavby?
Copyright © 2026 Českobrodská 35, 190 12 Praha 9 - Dolní Počernice Kontakt
