| Název: | Eko top III - dřevostavba na klíč |
| Kategorie: | Projekty dřevostaveb - katalog dřevostaveb na klíč |
| Společnost: | EKOPANELY SERVIS s.r.o. |
| Charakteristika domu: |
|
| Počet podlaží: | jednopodlažní |
| Generačnost: | jednogenerační |
| Konstrukční systém: |
|
| Podlahová plocha (užitná): | 113,40 m² |
| Obytná plocha: | 79,40 m² |
| Zastavěná plocha: | 150,30 m² |
| Dispozice: | 4+kk / 4+1 |
| Cena včetně základové desky: | Ne |
Aktuální ceny naleznete na stránkách, případně na dotaz u prezentované společnosti.
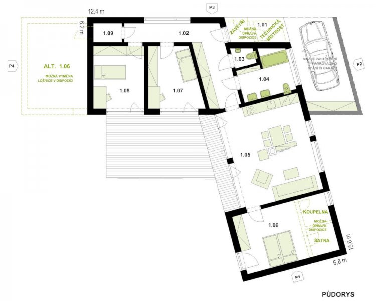
Přízemní variabilní rodinný dům v nízkoenergetickém standardu navržený tak, aby bylo možné připojit kryté parkovací stání či garáž do celého konceptu rodinného domu. Další možností, který tento dům nabízí, jsou varianty umístění ložnice v pravém či levém křídle stavby s vlastní koupelnou a šatnou. Možnost uzavření závětří a vytvoření komory dle individuálních požadavků dává tomuto domu další přidanou hodnotu. Půdorys ve tvaru L vytváří soukromý prostor pro částečně zastřešenou terasu otevřenou do zahrady. Dům je vhodný pro rodinu s dětmi. Dispozice jsou promyšlené tak, aby zajistily veškerý komfort jeho uživatelům. Jedna část domu je určená pro společný život rodiny a druhá naopak poskytuje soukromí pro každého člena samostatně. Hlavní obytná místnost spojuje obývací část s kuchyní i jídelním koutem. V půdorysu nechybí ani technická místnost, prostorná koupelna a samostatné WC. Toto řešení rodinného domu skloubí nové ekologické bydlení se zdravým vnitřním klimatem na vlastním pozemku (v soukromém objektu bez přímých sousedů). Francouzská okna jsou orientována na částečně zastřešenou terasu směrem do zahrady. Provozní náklady energeticky úsporného domu nezatíží vaši peněženku, realizace Vaší představy od projektu po konečnou finalizaci stavby pod jednou firmou zajistí Vaši plnou spokojenost.
|
Oznámkujte |
Oblíbené: 0 |
|
Nízkoenergetická dřevostavba
EKOPANELY SERVIS s.r.o.
Užitná plocha: 115 m²
Dispozice: 4+kk / 4+1
Dům se sloupy z douglasky
ARCHCON atelier, s.r.o., DŘEVOSTAVBY BISKUP, s.r.o.
Užitná plocha: 118.44 m²
Dispozice: 4+kk / 4+1
Rodinný dům Tábor - dřevostavba na klíč
ALFAHAUS s.r.o.
Užitná plocha: 137 m²
Dispozice: 4+kk / 4+1
Pavo 111 - dřevostavba na klíč
A T R I U M, s.r.o.
Užitná plocha: 111.03 m²
Dispozice: 5+kk / 5+1
Dům venkovského stylu
EKOPANELY SERVIS s.r.o.
Užitná plocha: 153 m²
Dispozice: 4+kk / 4+1
RD Mnichovice
EKOPANELY SERVIS s.r.o.
Užitná plocha: 124.3 m²
Dispozice: 3+kk / 3+1
Futura Freestyle - dřevostavba na klíč
Prodesi I Domesi
Užitná plocha: 107.8 m²
Dispozice: 3+kk / 3+1
Moderní roubenka v trampské osadě
OK PYRUS, s.r.o.
Užitná plocha: 117 m²
Bennet
KANADSKÉ SRUBY TÁBOR, s.r.o.
Užitná plocha: 177 m²
Dispozice: 5+kk / 5+1
LUCERN 116 - dřevostavba na klíč
LUCERN dřevostavby s.r.o.
Užitná plocha: 103.1 m²
Dispozice: 4+kk / 4+1
EKONOMY MS 04 - dřevostavba na klíč
MS HAUS s.r.o.
Užitná plocha: 85 m²
Dispozice: 4+kk / 4+1
Chata v Jizerských horách - dřevostavba na klíč
3AE s.r.o.
Ekologická dřevostavba
EKOPANELY SERVIS s.r.o.
Užitná plocha: 128 m²
Dispozice: 3+kk / 3+1
Rodinný dům 307 - dřevostavba na klíč
MARTINICE GROUP s.r.o.
Užitná plocha: 130 m²
Dispozice: 5+kk / 5+1
Lesníkova roubenka
EKOPANELY SERVIS s.r.o.
Užitná plocha: 260 m²
Dispozice: 5+kk / 5+1
Proč jste na portále DŘEVO&stavby?
Copyright © 2026 Českobrodská 35, 190 12 Praha 9 - Dolní Počernice Kontakt
