| Název: | EKONOMY MS 06b - dřevostavba na klíč |
| Kategorie: | Projekty dřevostaveb - katalog dřevostaveb na klíč |
| Společnost: | MS HAUS s.r.o. |
| Charakteristika domu: |
|
| Počet podlaží: | vícepodlažní |
| Generačnost: | jednogenerační |
| Konstrukční systém: |
|
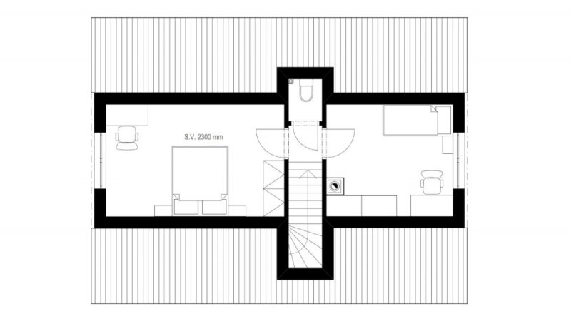
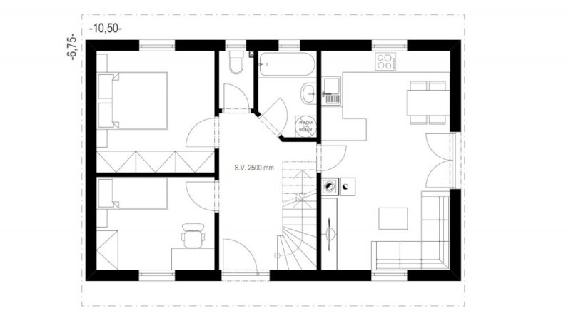
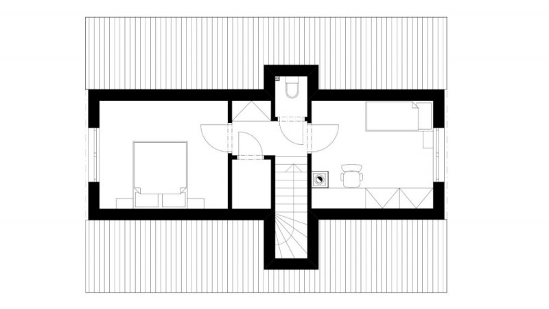
| Podlahová plocha (užitná): | 86,00 m² |
| Zastavěná plocha: | 71,00 m² |
| Dispozice: | 5+kk / 5+1 |
| Cena hrubé stavby (vč. DPH): | 1 741 905 Kč Spočítat financování |
| Cena dřevostavby na klíč (vč. DPH): | 3 244 150 Kč Spočítat financování |
| Cena včetně základové desky: | Ano |
Aktuální ceny naleznete na stránkách, případně na dotaz u prezentované společnosti.
Dřevostavba na klíč MS 06 Ekonomy je malá dřevostvba vhodná i pro větší rodinu. Dispozice je navržena jako 5 + kk s tím, že je možno stavět dřevostavbu za účelem dalšího uspoření okamžitých investičních nákladů etapovitě tzn. nejprve na klíč postavit přízemí a dodatečně dobudovat podkroví. K domku je možné připojit i objekt garáže. A tím jeho užitnou hodnotu ještě zvětšit.
Cena dřevostavby MS 06b Ekonomy obsahuje pouze přípravu pro pozdější vestavbu podkroví.
Dřevostavbu lze realizovat na malých či na úzkých parcelách. V domě bylo dbáno na vyváženost tepelně technického zpracování a nákladů na zhotovení. Dům je vhodný pro 4-5 osob. Dispozici lze různě upravovat dle přání a možností investora.
Všechny dřevostavby společnosti MS Haus s.r.o. lze dispozičně dále upravovat dle požadavku klienta. Příkladem je posunutí stěn, posunutí, či přesunutí okna či dveří na jinou fasádu. Další zajímavou možností je změna sklonu nebo rovnou změna tvaru a typu střechy, či krytiny. Dále je možné zlepšení tepelně technických vlastností dřevostaveb až na hodnoty doporučené pro pasivní domy. Změna druhu vytápění je také samozřejmostí!
Cena dřevostavby na klíč u domů MS 03a, MS 03b, MS 03c, MS 05 a MS 06b obsahuje přízemí na klíč a přípravu pro pozdější vestavbu podkroví (zesílené stropy, upravené vazníky, štítová okna, rezerva v rozvaděči E.I., příprava sanitární instalace). Rozsah a vlastní dodávku stavby lze měnit na přání zákazníka.
|
Oznámkujte |
Oblíbené: 1 |
|
Rodinný dům Tábor - dřevostavba na klíč
ALFAHAUS s.r.o.
Užitná plocha: 137 m²
Dispozice: 4+kk / 4+1
Rodinný dům 307 - dřevostavba na klíč
MARTINICE GROUP s.r.o.
Užitná plocha: 130 m²
Dispozice: 5+kk / 5+1
Ekologická dřevostavba
EKOPANELY SERVIS s.r.o.
Užitná plocha: 128 m²
Dispozice: 3+kk / 3+1
Lesníkova roubenka
EKOPANELY SERVIS s.r.o.
Užitná plocha: 260 m²
Dispozice: 5+kk / 5+1
EKONOMY MS 04 - dřevostavba na klíč
MS HAUS s.r.o.
Užitná plocha: 85 m²
Dispozice: 4+kk / 4+1
RD Mnichovice
EKOPANELY SERVIS s.r.o.
Užitná plocha: 124.3 m²
Dispozice: 3+kk / 3+1
LUCERN 116 - dřevostavba na klíč
LUCERN dřevostavby s.r.o.
Užitná plocha: 103.1 m²
Dispozice: 4+kk / 4+1
Moderní roubenka v trampské osadě
OK PYRUS, s.r.o.
Užitná plocha: 117 m²
Dům se sloupy z douglasky
ARCHCON atelier, s.r.o., DŘEVOSTAVBY BISKUP, s.r.o.
Užitná plocha: 118.44 m²
Dispozice: 4+kk / 4+1
Chata v Jizerských horách - dřevostavba na klíč
3AE s.r.o.
Nízkoenergetická dřevostavba
EKOPANELY SERVIS s.r.o.
Užitná plocha: 115 m²
Dispozice: 4+kk / 4+1
Pavo 111 - dřevostavba na klíč
A T R I U M, s.r.o.
Užitná plocha: 111.03 m²
Dispozice: 5+kk / 5+1
Optimal 02 - dřevostavba na klíč
PENATUS s.r.o.
Užitná plocha: 124 m²
Dispozice: 4+kk / 4+1
Dům venkovského stylu
EKOPANELY SERVIS s.r.o.
Užitná plocha: 153 m²
Dispozice: 4+kk / 4+1
Futura Freestyle - dřevostavba na klíč
Prodesi I Domesi
Užitná plocha: 107.8 m²
Dispozice: 3+kk / 3+1
Proč jste na portále DŘEVO&stavby?
Copyright © 2026 Českobrodská 35, 190 12 Praha 9 - Dolní Počernice Kontakt
