| Název: | MOOD 01 - dřevostavba na klíč |
| Kategorie: | Projekty dřevostaveb - katalog dřevostaveb na klíč |
| Společnost: | GOOPAN |
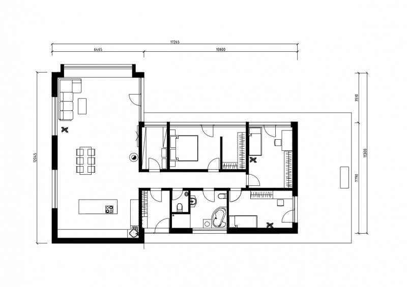
| Charakteristika domu: |
|
| Počet podlaží: | jednopodlažní |
| Generačnost: | jednogenerační |
| Konstrukční systém: |
|
| Podlahová plocha (užitná): | 125,00 m² |
| Dispozice: | 4+kk / 4+1 |
Aktuální ceny naleznete na stránkách, případně na dotaz u prezentované společnosti.
Na první pohled moderní architektura, světlo a prostor. Dům pro tříčlennou rodinu, který respektuje společenský prostor a odděluje osobní potřeby. I přes to, že je dům typu bungalov, po vstupu se vydáte buď doleva do velkorysého společenské prostoru nebo doprava do ložnicové části domu. Společný prostor překvapí hned několikrát. Ohromí vás výška stropu, která dodá jídelně, kuchyni a obývacímu pokoji na velikosti. Pocit nekonečné výšky podporuje vnímáni velikosti propojených místností. Atmosféru podtrhne předsazené okno, které láká k šálku kávy či čaje a odpočinku.
Součástí domu je pak prostorná hlavní ložnice s přiléhající šatnou, ze které vstupujete přímo na terasu a zahradu. Další dvě ložnice a prostorná koupelna dělají dům domovem.
|
Oznámkujte |
Oblíbené: 0 |
|
Rodinný dům 307 - dřevostavba na klíč
MARTINICE GROUP s.r.o.
Užitná plocha: 130 m²
Dispozice: 5+kk / 5+1
Optimal 02 - dřevostavba na klíč
PENATUS s.r.o.
Užitná plocha: 124 m²
Dispozice: 4+kk / 4+1
Bennet
KANADSKÉ SRUBY TÁBOR, s.r.o.
Užitná plocha: 177 m²
Dispozice: 5+kk / 5+1
Pavo 111 - dřevostavba na klíč
A T R I U M, s.r.o.
Užitná plocha: 111.03 m²
Dispozice: 5+kk / 5+1
Dům se sloupy z douglasky
ARCHCON atelier, s.r.o., DŘEVOSTAVBY BISKUP, s.r.o.
Užitná plocha: 118.44 m²
Dispozice: 4+kk / 4+1
Moderní roubenka v trampské osadě
OK PYRUS, s.r.o.
Užitná plocha: 117 m²
RD Mnichovice
EKOPANELY SERVIS s.r.o.
Užitná plocha: 124.3 m²
Dispozice: 3+kk / 3+1
LUCERN 116 - dřevostavba na klíč
LUCERN dřevostavby s.r.o.
Užitná plocha: 103.1 m²
Dispozice: 4+kk / 4+1
Dům venkovského stylu
EKOPANELY SERVIS s.r.o.
Užitná plocha: 153 m²
Dispozice: 4+kk / 4+1
Rodinný dům Tábor - dřevostavba na klíč
ALFAHAUS s.r.o.
Užitná plocha: 137 m²
Dispozice: 4+kk / 4+1
Futura Freestyle - dřevostavba na klíč
Prodesi I Domesi
Užitná plocha: 107.8 m²
Dispozice: 3+kk / 3+1
Ekologická dřevostavba
EKOPANELY SERVIS s.r.o.
Užitná plocha: 128 m²
Dispozice: 3+kk / 3+1
Chata v Jizerských horách - dřevostavba na klíč
3AE s.r.o.
Nízkoenergetická dřevostavba
EKOPANELY SERVIS s.r.o.
Užitná plocha: 115 m²
Dispozice: 4+kk / 4+1
EKONOMY MS 04 - dřevostavba na klíč
MS HAUS s.r.o.
Užitná plocha: 85 m²
Dispozice: 4+kk / 4+1
Proč jste na portále DŘEVO&stavby?
Copyright © 2026 Českobrodská 35, 190 12 Praha 9 - Dolní Počernice Kontakt
