| Název: | MS 13 Ekonomy - dřevostavba na klíč |
| Kategorie: | Projekty dřevostaveb - katalog dřevostaveb na klíč |
| Společnost: | MS HAUS s.r.o. |
| Charakteristika domu: |
|
| Počet podlaží: | vícepodlažní |
| Generačnost: | jednogenerační |
| Konstrukční systém: |
|
| Ostatní parametry: |
|
| Podlahová plocha (užitná): | 113,00 m² |
| Zastavěná plocha: | 72,00 m² |
| Dispozice: | 5+kk / 5+1 |
| Cena hrubé stavby (vč. DPH): | 2 371 760 Kč Spočítat financování |
| Cena dřevostavby na klíč (vč. DPH): | 4 316 525 Kč Spočítat financování |
| Cena včetně základové desky: | Ano |
Aktuální ceny naleznete na stránkách, případně na dotaz u prezentované společnosti.
Dřevostavba na klíč MS 13 Ekonomy je dům, který splňuje všechny parametry domu v pasivním energetickém standardu. Tato dřevostavba byla speciálně navržena pro velmi úzké parcely, kde bez žádosti o výjimku je možno stavět na parcele šíře již od 12,5 m a proto je svým tvarem a dispozicí vhodná nejen do městské zástavby, ale také všude tam, kde je nedostatek prostoru. Je to prostorná dřevostavba pro 3-4 osoby, který zabírá velmi malou zastavěnou plochu.
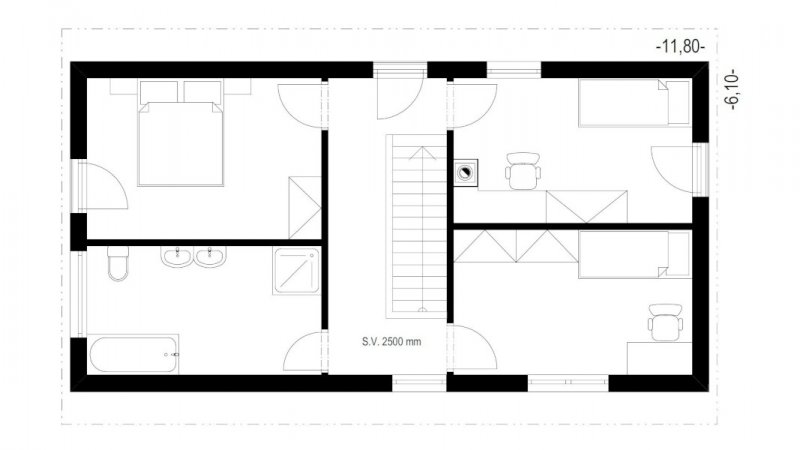
Dispozice je klasická 5 + kk ve dvou podlažích se zajímavým průhledem z galerie, užitná plocha domu je 114 m2. Za příplatek je také možné dům prodloužit.
K vytápění této dřevostavby se předpokládá teplovzdušné vytápění s rekuperací odpadního tepla s účinností min. 85%. Dalšího komfortu bydlení s efektem snížení nákladů na bydlení může být dosaženo vybavením domu komínem s krbovou vložkou.
Přízemí této dřevostavby na klíč tvoří moderně otevřený prostor obývacího pokoje spojeného s jídelnou a kuchyňským koutem, který volně navazuje na zádveří. Dále se v přízemí nachází technická místnost, WC a pracovna. V patře jsou k dispozici dva pokoje, koupelna a šatna.
Všechny dřevostavby společnosti MS Haus s.r.o. lze dispozičně dále upravovat dle požadavku klienta. Příkladem je posunutí stěn, posunutí, či přesunutí okna či dveří na jinou fasádu. Další zajímavou možností je změna sklonu nebo rovnou změna tvaru a typu střechy, či krytiny.
|
Oznámkujte |
Oblíbené: 0 |
|
LUCERN 116 - dřevostavba na klíč
LUCERN dřevostavby s.r.o.
Užitná plocha: 103.1 m²
Dispozice: 4+kk / 4+1
EKONOMY MS 04 - dřevostavba na klíč
MS HAUS s.r.o.
Užitná plocha: 85 m²
Dispozice: 4+kk / 4+1
Rodinný dům 307 - dřevostavba na klíč
MARTINICE GROUP s.r.o.
Užitná plocha: 130 m²
Dispozice: 5+kk / 5+1
Lesníkova roubenka
EKOPANELY SERVIS s.r.o.
Užitná plocha: 260 m²
Dispozice: 5+kk / 5+1
Nízkoenergetická dřevostavba
EKOPANELY SERVIS s.r.o.
Užitná plocha: 115 m²
Dispozice: 4+kk / 4+1
Rodinný dům Tábor - dřevostavba na klíč
ALFAHAUS s.r.o.
Užitná plocha: 137 m²
Dispozice: 4+kk / 4+1
Moderní roubenka v trampské osadě
OK PYRUS, s.r.o.
Užitná plocha: 117 m²
Futura Freestyle - dřevostavba na klíč
Prodesi I Domesi
Užitná plocha: 107.8 m²
Dispozice: 3+kk / 3+1
Optimal 02 - dřevostavba na klíč
PENATUS s.r.o.
Užitná plocha: 124 m²
Dispozice: 4+kk / 4+1
Dům se sloupy z douglasky
ARCHCON atelier, s.r.o., DŘEVOSTAVBY BISKUP, s.r.o.
Užitná plocha: 118.44 m²
Dispozice: 4+kk / 4+1
Ekologická dřevostavba
EKOPANELY SERVIS s.r.o.
Užitná plocha: 128 m²
Dispozice: 3+kk / 3+1
Bennet
KANADSKÉ SRUBY TÁBOR, s.r.o.
Užitná plocha: 177 m²
Dispozice: 5+kk / 5+1
Pavo 111 - dřevostavba na klíč
A T R I U M, s.r.o.
Užitná plocha: 111.03 m²
Dispozice: 5+kk / 5+1
Dům venkovského stylu
EKOPANELY SERVIS s.r.o.
Užitná plocha: 153 m²
Dispozice: 4+kk / 4+1
RD Mnichovice
EKOPANELY SERVIS s.r.o.
Užitná plocha: 124.3 m²
Dispozice: 3+kk / 3+1
Proč jste na portále DŘEVO&stavby?
Copyright © 2026 Českobrodská 35, 190 12 Praha 9 - Dolní Počernice Kontakt
