| Název: | MS 65b - dřevostavba na klíč |
| Kategorie: | Projekty dřevostaveb - katalog dřevostaveb na klíč |
| Společnost: | MS HAUS s.r.o. |
| Charakteristika domu: |
|
| Počet podlaží: | jednopodlažní |
| Generačnost: | jednogenerační |
| Konstrukční systém: |
|
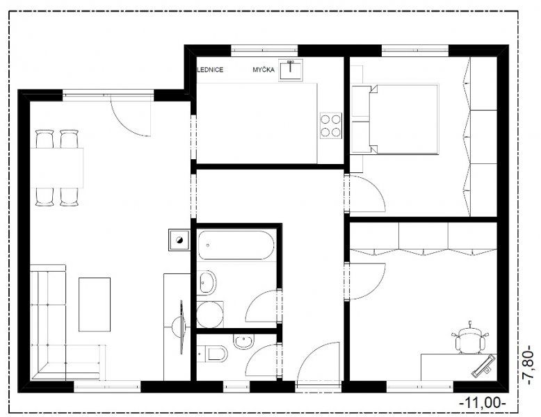
| Podlahová plocha (užitná): | 69,00 m² |
| Zastavěná plocha: | 84,00 m² |
| Dispozice: | 3+kk / 3+1 |
| Cena hrubé stavby (vč. DPH): | 1 672 560 Kč Spočítat financování |
| Cena dřevostavby na klíč (vč. DPH): | 3 342 130 Kč Spočítat financování |
| Cena včetně základové desky: | Ano |
Aktuální ceny naleznete na stránkách, případně na dotaz u prezentované společnosti.
Menší dřevostavba na klíč s jednoduchou architekturou je řešená pro starší manželé či rodiny, které již nepředpokládají další zvětšování. Svým dispozičním řešením se blíží standardu městského bytu. Zajímavě řešený obytný prostor s kuchyní propojenou oddělenou a přesto propojenou s obývacím prostorem. Další úložný prostor je možno na přání vytvořit v půdním prostoru přístupném přes vyklápěcí schody. Tuto malou dřevostavbu na klíč je možno provést dle přání zákazníka se sedlovou či valbovou střechou. V případě sedlové střechy se nabízí možnost obložit štít dřevem. Hledáte-li menší dřevostavbu na klíč s užitnou plochou do 70 metrů čtverečních, je pro Vás MS 65 II ideálním řešením.
|
Oznámkujte |
Oblíbené: 0 |
|
Rodinný dům Tábor - dřevostavba na klíč
ALFAHAUS s.r.o.
Užitná plocha: 137 m²
Dispozice: 4+kk / 4+1
Bennet
KANADSKÉ SRUBY TÁBOR, s.r.o.
Užitná plocha: 177 m²
Dispozice: 5+kk / 5+1
Dům se sloupy z douglasky
ARCHCON atelier, s.r.o., DŘEVOSTAVBY BISKUP, s.r.o.
Užitná plocha: 118.44 m²
Dispozice: 4+kk / 4+1
Lesníkova roubenka
EKOPANELY SERVIS s.r.o.
Užitná plocha: 260 m²
Dispozice: 5+kk / 5+1
Dům venkovského stylu
EKOPANELY SERVIS s.r.o.
Užitná plocha: 153 m²
Dispozice: 4+kk / 4+1
Ekologická dřevostavba
EKOPANELY SERVIS s.r.o.
Užitná plocha: 128 m²
Dispozice: 3+kk / 3+1
RD Mnichovice
EKOPANELY SERVIS s.r.o.
Užitná plocha: 124.3 m²
Dispozice: 3+kk / 3+1
Pavo 111 - dřevostavba na klíč
A T R I U M, s.r.o.
Užitná plocha: 111.03 m²
Dispozice: 5+kk / 5+1
Rodinný dům 307 - dřevostavba na klíč
MARTINICE GROUP s.r.o.
Užitná plocha: 130 m²
Dispozice: 5+kk / 5+1
EKONOMY MS 04 - dřevostavba na klíč
MS HAUS s.r.o.
Užitná plocha: 85 m²
Dispozice: 4+kk / 4+1
Nízkoenergetická dřevostavba
EKOPANELY SERVIS s.r.o.
Užitná plocha: 115 m²
Dispozice: 4+kk / 4+1
Futura Freestyle - dřevostavba na klíč
Prodesi I Domesi
Užitná plocha: 107.8 m²
Dispozice: 3+kk / 3+1
LUCERN 116 - dřevostavba na klíč
LUCERN dřevostavby s.r.o.
Užitná plocha: 103.1 m²
Dispozice: 4+kk / 4+1
Optimal 02 - dřevostavba na klíč
PENATUS s.r.o.
Užitná plocha: 124 m²
Dispozice: 4+kk / 4+1
Chata v Jizerských horách - dřevostavba na klíč
3AE s.r.o.
Proč jste na portále DŘEVO&stavby?
Copyright © 2026 Českobrodská 35, 190 12 Praha 9 - Dolní Počernice Kontakt
