| Název: | Třebonice - dřevostavba na klíč |
| Kategorie: | Projekty dřevostaveb - katalog dřevostaveb na klíč |
| Společnost: | Origis s.r.o. |
| Charakteristika domu: |
|
| Počet podlaží: | vícepodlažní |
| Generačnost: | jednogenerační |
| Konstrukční systém: |
|
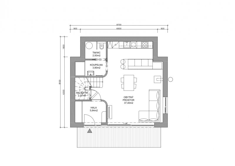
| Podlahová plocha (užitná): | 110,70 m² |
| Zastavěná plocha: | 79,70 m² |
| Dispozice: | 3+kk / 3+1 |
Aktuální ceny naleznete na stránkách, případně na dotaz u prezentované společnosti.
Patrová kombinovaná stavba se zachovanými rysy venkovské architektury navržena individuálně na malý, svažitý pozemek.
Hmota domu je tvořena průnikem tradiční podlouhlé hmoty lidového domu završeného sedlovou střechou s malými přesahy a kvádru tvořící konzulu v rovině podkroví. Z pohledu ulice je zachováno tradiční průčelí domu, korunované kulatým oknem ve štítě. Z pohledu zahrady pak dominujte vykonzolovaná hmota nad terasou, která zároveň tvoří zastínění obývacího pokoje pro letní období a částečně kryje terasu při nepřízni počasí.
Dispozice domu 3+kk je určena pro dvě osoby. V přízemí objektu se za vstupem nachází obývací pokoj s jídelnou a kuchyní a dále pak koupelna, toaleta a technická místnosti. V podkroví jsou umístěny dvě ložnice, odpočinková otevřená místnost s pracovnou, šatna, koupelna a prádelna.
|
Oznámkujte |
Oblíbené: 0 |
|
Optimal 02 - dřevostavba na klíč
PENATUS s.r.o.
Užitná plocha: 124 m²
Dispozice: 4+kk / 4+1
Pavo 111 - dřevostavba na klíč
A T R I U M, s.r.o.
Užitná plocha: 111.03 m²
Dispozice: 5+kk / 5+1
Chata v Jizerských horách - dřevostavba na klíč
3AE s.r.o.
Rodinný dům 307 - dřevostavba na klíč
MARTINICE GROUP s.r.o.
Užitná plocha: 130 m²
Dispozice: 5+kk / 5+1
Bennet
KANADSKÉ SRUBY TÁBOR, s.r.o.
Užitná plocha: 177 m²
Dispozice: 5+kk / 5+1
Ekologická dřevostavba
EKOPANELY SERVIS s.r.o.
Užitná plocha: 128 m²
Dispozice: 3+kk / 3+1
Nízkoenergetická dřevostavba
EKOPANELY SERVIS s.r.o.
Užitná plocha: 115 m²
Dispozice: 4+kk / 4+1
Futura Freestyle - dřevostavba na klíč
Prodesi I Domesi
Užitná plocha: 107.8 m²
Dispozice: 3+kk / 3+1
Dům venkovského stylu
EKOPANELY SERVIS s.r.o.
Užitná plocha: 153 m²
Dispozice: 4+kk / 4+1
Dům se sloupy z douglasky
ARCHCON atelier, s.r.o., DŘEVOSTAVBY BISKUP, s.r.o.
Užitná plocha: 118.44 m²
Dispozice: 4+kk / 4+1
EKONOMY MS 04 - dřevostavba na klíč
MS HAUS s.r.o.
Užitná plocha: 85 m²
Dispozice: 4+kk / 4+1
Rodinný dům Tábor - dřevostavba na klíč
ALFAHAUS s.r.o.
Užitná plocha: 137 m²
Dispozice: 4+kk / 4+1
RD Mnichovice
EKOPANELY SERVIS s.r.o.
Užitná plocha: 124.3 m²
Dispozice: 3+kk / 3+1
Lesníkova roubenka
EKOPANELY SERVIS s.r.o.
Užitná plocha: 260 m²
Dispozice: 5+kk / 5+1
LUCERN 116 - dřevostavba na klíč
LUCERN dřevostavby s.r.o.
Užitná plocha: 103.1 m²
Dispozice: 4+kk / 4+1
Proč jste na portále DŘEVO&stavby?
Copyright © 2026 Českobrodská 35, 190 12 Praha 9 - Dolní Počernice Kontakt
