| Název: | VEXTA 104 - dřevostavba na klíč |
| Kategorie: | Projekty dřevostaveb - katalog dřevostaveb na klíč |
| Společnost: | VEXTA a.s. |
| Charakteristika domu: |
|
| Počet podlaží: | vícepodlažní |
| Generačnost: | jednogenerační |
| Konstrukční systém: |
|
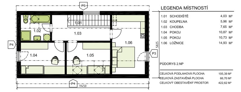
| Podlahová plocha (užitná): | 103,70 m² |
| Zastavěná plocha: | 69,50 m² |
| Místnost navíc: |
|
| Tvar střechy: | sedlová |
| Dispozice: | 4+kk / 4+1 |
| Sklon střechy: | 40° |
| Cena hrubé stavby (vč. DPH): | 2 004 240 Kč Spočítat financování |
| Cena dřevostavby na klíč (vč. DPH): | 4 741 520 Kč Spočítat financování |
| Cena včetně základové desky: | Ne |
Aktuální ceny naleznete na stránkách, případně na dotaz u prezentované společnosti.
Preferujete moderní dům, který bude dostupný, ale přesto bude splňovat všechny požadavky na pohodlné bydlení celé rodiny? Potom by vás mohl zaujmout projekt patrového domu VEXTA 104.
Velkorysé dispoziční řešení domu je sice „papírově" jen 4+kk, nicméně všechny obytné pokoje jsou naprosto plnohodnotné (obývací pokoj s kuchyní v přízemí má přes 34 m2!) a nad rámec toho je v přízemí prostorné zádveří s praktickou šatnou a samostatná toaleta.
V patře je umístěna vzdušná hala se schodištěm, 3 ložnice a velká koupelna s vanou i sprchovým koutem. Nemusíte se bát ani nedostatku úložných prostor, kromě šatny v přízemí je ve všech obytných místnostech navržen prostor pro vestavěné skříně.
Hledáte-li rodinný patrový dům s malým půdorysem a za rozumné peníze, pak neznáme lepší volbu.
|
Oznámkujte |
Oblíbené: 0 |
|
Rodinný dům 307 - dřevostavba na klíč
MARTINICE GROUP s.r.o.
Užitná plocha: 130 m²
Dispozice: 5+kk / 5+1
Futura Freestyle - dřevostavba na klíč
Prodesi I Domesi
Užitná plocha: 107.8 m²
Dispozice: 3+kk / 3+1
RD Mnichovice
EKOPANELY SERVIS s.r.o.
Užitná plocha: 124.3 m²
Dispozice: 3+kk / 3+1
Rodinný dům Tábor - dřevostavba na klíč
ALFAHAUS s.r.o.
Užitná plocha: 137 m²
Dispozice: 4+kk / 4+1
Ekologická dřevostavba
EKOPANELY SERVIS s.r.o.
Užitná plocha: 128 m²
Dispozice: 3+kk / 3+1
Moderní roubenka v trampské osadě
OK PYRUS, s.r.o.
Užitná plocha: 117 m²
Nízkoenergetická dřevostavba
EKOPANELY SERVIS s.r.o.
Užitná plocha: 115 m²
Dispozice: 4+kk / 4+1
Pavo 111 - dřevostavba na klíč
A T R I U M, s.r.o.
Užitná plocha: 111.03 m²
Dispozice: 5+kk / 5+1
LUCERN 116 - dřevostavba na klíč
LUCERN dřevostavby s.r.o.
Užitná plocha: 103.1 m²
Dispozice: 4+kk / 4+1
Dům se sloupy z douglasky
ARCHCON atelier, s.r.o., DŘEVOSTAVBY BISKUP, s.r.o.
Užitná plocha: 118.44 m²
Dispozice: 4+kk / 4+1
Dům venkovského stylu
EKOPANELY SERVIS s.r.o.
Užitná plocha: 153 m²
Dispozice: 4+kk / 4+1
Chata v Jizerských horách - dřevostavba na klíč
3AE s.r.o.
Lesníkova roubenka
EKOPANELY SERVIS s.r.o.
Užitná plocha: 260 m²
Dispozice: 5+kk / 5+1
EKONOMY MS 04 - dřevostavba na klíč
MS HAUS s.r.o.
Užitná plocha: 85 m²
Dispozice: 4+kk / 4+1
Optimal 02 - dřevostavba na klíč
PENATUS s.r.o.
Užitná plocha: 124 m²
Dispozice: 4+kk / 4+1
Proč jste na portále DŘEVO&stavby?
Copyright © 2026 Českobrodská 35, 190 12 Praha 9 - Dolní Počernice Kontakt
