Komerční sdělení | Úterý, 14. únor 2017 |
Dřevostavba v podobě moderní roubenky je domovem postaveným "od kořenů k bydlení", jak hlásí slogan firmy NEMA, která dům realizovala.
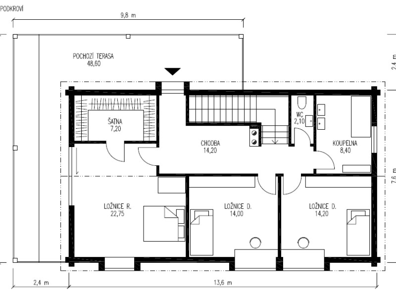
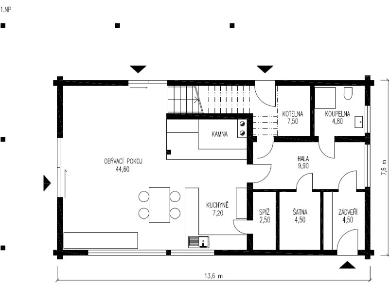
Dvoupatrová roubenka v moderním duchu
Dvoupatrová roubenka v moderním duchu je navržena jako z lepených pohledových trámů o rozměru 235 × 235 mm, příčky jsou roubené o tloušťce 114 mm, strop nad přízemím tvoří pohledové masivní trámy 200 × 240 mm zaklopené podlahovou palubkou. Celý krov je z interiéru podkroví pohledový. Nadstandardně zařízený interiér doplňuje vůně dřeva, a dělá tak z této dřevostavby opravdu domov postavený "od kořenů k bydlení", jak hlásí slogan firmy NEMA, která dům realizovala.




Roubenka jako nízkoenergetický dům
Dům je navržen jako nízkoenergetický a navíc využívá tepelného čerpadla. Splňuje požadavky třídy energetické náročnosti budovy skupiny B. Jedná se tedy o velmi úspornou dřevostavbu.













Vytvořeno v xart.cz