Markéta Kristová | Čtvrtek, 01. duben 2021 |
Uvažujete o stavbě dřevostavby a máte vybraný pozemek v městské nebo vesnické zástavbě? Vybrali jsme pro vás typový projekt moderní skeletové dřevostavby, kterou si můžete nechat upravit dle individuálních přání. Stejně tak to udělali i manželé, kteří si typový projekt téhle moderní dřevostavby jednoduše zamilovali, a které jsme navštívili v rámci redakční návštěvy.
Skeletová dřevostavba
U skeletové dřevostavby rozlišujeme dvě základní podskupiny. Lehký dřevěný skelet, též nazývaný systém Two by Four, který je odvozen od nejrozšířenějšího smrkového fošnového profilu 2″ x 4″, tedy cca 50 x 100 mm). Nosná konstrukce je z hraněného dřeva, v posledních letech se používají také KVH hranoly nebo lehké a přesné I-nosníky se stojinou.
Původně byla kostra stavby zhotovena z hranolů a jednotlivé prvky spojené tesařskými vazbami – plátováním, čepováním, přeplátováním. V současné době se prvky kostry spojují sponkami nebo hřebíky, takzvaně sbíjejí. Systém je velice flexibilní a umožňuje stavbu objektu prakticky na přání zákazníka se snadnou možností provádění dodatečných změn a snadné a přehledné montáže stavby. Tato konstrukce se používá především pro stavbu rodinných domů.
Pro občanské stavby, ale i pro rodinné domy se používají také skeletové konstrukční systémy založené na vytvoření skeletu ze sloupů a průvlaků (používá se především lepené lamelové dřevo) spojených vzájemně ve styčnících pomocí kovových úhelníků, trnů a svorníků. Konstrukce se kompletuje nenosnými obvodovými plášti a dělicími konstrukcemi stropu a příček. Vzhledem k tomu, že dřevěné prvky jsou dva až tři a půl krát hmotnější než u lehkého dřevěného skeletu, říká se této konstrukci „těžká" neboli těžký dřevěný skelet.

obr.: Lehký dřevěný skelet. Foto: Alexandr Ivasenko, Zdroj: Dreamstime
Rozdíl mezi těžkým a lehkým skeletem je patrný i na první pohled. Z konstrukčního hlediska spočívá hlavní rozdíl v tom, která část konstrukce je nosná – u těžkého skeletu jsou to sloupy a průvlaky, u lehkého sloupky i jejich opláštění.

obr.: Těžký dřevěný skelet. Foto: Alexandr Ivasenko, Zdroj: Dreamstime
Moderní dřevostavba s působivým vzhledem
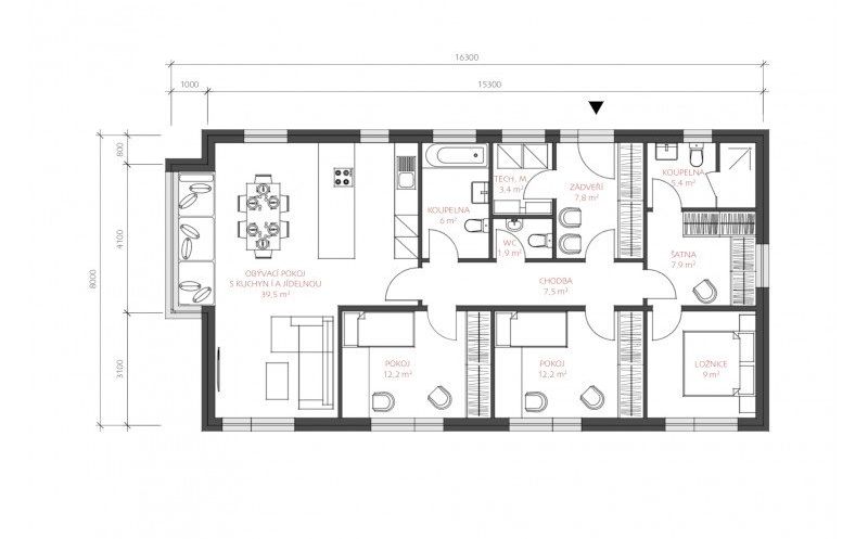
Typová dřevostavba LUCERN 127 patří mezi k nejoblíbenějším domům. Jedná se o klasickou moderní dřevostavbu, která působí velice moderním způsobem. Zapadne do každé zástavby a většinou splní všechny regulativy obcí. Vnitřní dispozice domu se dá upravovat dle individuálních přání a potřeb.
Dispozice o velikosti 4+kk, je rozdělena na svůj vlastní blok pro rodiče a skládá se z ložnice, šatna a koupelny. V případě početnější rodiny je možnost si zvolit variantu s dispozicí 5+kk, kde pátý pokoj slouží jako pracovna, popřípadě pokoj pro hosty.
Klienti u tohoto domu oceňují zejména velké prosklení všech pokojů směrem do zahrady a v neposlední řadě chytře řešený „L" obývací pokoj s kuchyní, kde naleznete i sedací výklenek. Celý prostor působí velmi velkorysým, moderním a vzdušným dojmem.
Společnost LUCERN dřevostavby s.r.o., která je jedním z členů ADMD se zaměřuje na moderní individuální výstavbu dřevostaveb. Za dobu své bohaté praxe vyvinula několik typových domů, které splňují požadavky většiny klientů a tento je jedním z nich. Ceny typových domů obsahují vše, včetně DPH, základové desky, vysokých standardů a tepelného čerpadla s podlahovým topením / chlazením.

Vizualizace: LUCERN dřevostavby s.r.o.
-
Typový dům: LUCERN 127
- Realizace: LUCERN dřevostavby s.r.o.
- Charakteristika domu: samostatný
- Počet podlaží: jednopodlažní
- Konstrukční systém: skeletová dřevostavba
- Podlahová plocha (užitná): 112,70 m²
- Zastavěná plocha: 127,00 m²
- Cena dřevostavby na klíč (vč. DPH): 4 340 000 Kč

Vizualizace: LUCERN dřevostavby s.r.o.
Zkušenost skutečných majitelů, kteří si typovou dřevostavbu nechali postavit
„Pokud bych se na dům Tomáše a Michaely podívala okem filmového kritika, bez obav bych se podepsala pod status – harmonické splynutí formální i materiální stránky. Nabízí totiž univerzálně sdělné existenciální téma – mladou rodinu, která chce bydlet rychle, příjemně a za dobré peníze." Takový byl první dojem redaktorky časopisu DŘEVO&stavby Dany Jakoubkové, která navštívila majitele dřevostavby vycházející z typového domu LUCERN. Zajímalo nás, proč si majitelé nechali postavit právě tento typový dům?
Původně majitelé bydleli v bytě v Praze, který měl 80m². Když se jim narodily dvě holčičky začalo jim vadit, že z bytu stále odjíždějí někam do přírody a v tu chvíli zatoužili po vlastním domě. Hned na to se rozjelo pátrání po vhodném pozemku, kde by měli přírodu hned za okny.
Zamilovali se hned několikrát. Jenže je vždycky někdo předběhl. „U toho posledního pozemku to byla láska na první pohled jen přes plot, protože parcela byla plná náletů, bez jasných hranic. Ale znáte to, co srdce schvátí..., a tak jsme ho vlastně koupili bez bližšího ohledání. Dnes víme, že nám srdce napovědělo dobře."
Výběr dodavatele probíhal podle stejného scénáře. Z internetu a časopisů si manželé vytipovali několik dodavatelů. A stejně jako to bylo u pozemku se opět zamilovali do krásné vizualizace jednoho z typových dřevostaveb. „Šlo o typový dům, který víceméně vyhovoval našim představám," pokračuje Tomáš.
Když se řekne byt ve městě o 115 metrech čtverečních, je to velká plocha. Ale když se bavíme o domě, už vám tak velká nepřijde. Přesto si ji Tomáš s Michaelou zvolili a vešlo se jim do ní vše, co potřebují. „Limitem byly samozřejmě i finance, ale předně nám stačilo přidat nějakých dvanáct metrů oproti bytu, abychom v budoucnu měli samostatný pokoj pro druhou dcerku. Když jsem se ale na věc podíval jako chlap, který má doma tři ženské, bylo mi jasné, že jednou se s nimi budu přetahovat o zrcadlo v koupelně. Přidali jsme proto další koupelnu a vzhledem k tomu, že návštěvy za námi budou dojíždět z města, tak i pokoj pro hosty. I tak se stále jednalo o relativně malý dům a kamarádi se nám smáli, že jsme si postavili byt v zahradě. Když ale pak přijeli na návštěvu, byli ohromeni a takový baráček jim nejednou přišel ideální. " říká majitel Tomáš.

Otevřenost: Ze všech pokojů je přímý vstup do zahrady a všichni členové rodiny toho maximálně využívají. Jak říká Tomáš, od jara do podzimu je stále někde otevřeno, a proto nepovažovali za nutné instalovat řízené větrání. Aby běželo jen tři měsíce v roce, by byla škoda peněz. Foto: Petra Žebráková

Střídmost: Zařízení obýváku, který je vlastně jen takovým odpočinkovým koutem, je záměrně velice střídmé. Paní Michaela totiž ráda vaří i peče a tak se rodinné a návštěvní záležitosti točí hlavně kolem jídelního stolu. Televizi rodina nesleduje často, a pokud, tak se vejdou všichni do neobvykle hluboké sedačky. Foto: Petra Žebráková

Foto: Petra Žebráková

Přístup: Směrem k příjezdové cestě je modřínová fasáda poměrně uzavřená. Prolamuje ji pouze okno z kuchyně a vstupní dveře. Foto: Petra Žebráková
Šťastný výběr dodavatele dřevostavby
Nejen proto, že dům je postavený kvalitně a upravený tak, jak si majitelé přáli, ale i proto, že komunikace s firmou a její přístup k řešení problémů byl v tomto případě naprosto nadstandardní ji majitelé doporučují každému, kdo má zájem stavět dřevostavbu, včetně rodinných příslušníků.
„Dodavatel má fantastické lidi na jednotlivých profesích, pro které nebyl problém dělat změny okamžitě na místě, jako třeba když jsme si finálně řekli, kde bude stát jídelní stůl a připravený vývod na svítidlo byl trochu mimo střed. Na druhý den to bylo předělané. Prostě ochotní, operativní a žádné vícenáklady. Ano, nabídka domů je v trochu vyšší cenové hladině, ale jsou to stále ještě dobré ceny za to, že vám při sebemenším problému nikdo neřekne: to už nejde nebo už máme lidi na jiné stavbě. Pokud to znamená, že vyšší cena zahrnuje i rezervu pro případy, jako byl ten náš, tak jen dobře, protože vám ubude spousta starostí v případě, že v průběhu výstavby ještě ladíte výsledek k dokonalosti. Prostě jsme si zaplatili určitý standard, který je v tomto případě poměrně vysoký."

obr.: Podle majitelů je v jejich dřevostavbě velice příjemný pobyt i život. Foto: Petra Žebráková

Zaujala vás tato moderní typová dřevostavba a chcete více informací? Zašlete dodavateli přímý dotaz!
Společnost LUCERN dřevostavby s.r.o. se zaměřuje na moderní individuální výstavbu. Za dobu své bohaté praxe vyvinuli několik typových domů, které splňují požadavky většiny jejich klientů. Klientům nabízí profesionální zpracování studií, které buď vycházejí z typových domů, nebo vytvářejí úplně nové studie na přání klienta. V průběhu několika let postavili více jak 200 moderních domů a stali se leaderem na trhu ve výstavbě dřevostaveb metodou two-by-four.












Vytvořeno v xart.cz