Markéta Kristová | Úterý, 09. srpen 2022 |
Tato montovaná panelová dřevostavba potvrdila tvrzení o rychlé realizaci a pozadu nezůstává ani s kvalitou. Není pochyb, že dům je svou praktičností a s nároky na údržbu jako stvořený i na stáří, zvlášť v této bezbariérové podobě. Své o tom ví Rostislav s Petruší.
Ideální pozemek pro umístění bungalovu je rovina, která se pro něj hodí nejlépe. Z technického hlediska mu však nevadí ani svah s mírným sklonem. V takovém případě je však důležité postavit dům tak, aby do něj pronikal dostatek denního světla. I přesto, že stavba bungalovu vyžaduje větší pozemek, mají mnoho výhod, které z nich dělá nejvíce oblíbenou volbu pro bydlení.
Výhody bungalovu
- Největší výhodou bungalovu je jeho bezbariérovost. Hodí se tedy zvlášť pro starší pár nebo naopak rodinu s malými dětmi, které se mohou na schodech ve vícepatrovém domě snadno zranit.
- Bungalov je skvělou volbou i pro osoby s jakýmkoliv pohybovým omezením. Pro kompletní bezbariérovost bude ale bungalov jako dřevostavba na klíč vyžadovat dodatečné úpravy projektu.
- Bungalov nabízí v určitých směrech opravdu velkou volnost. Například při výběru střechy záleží především na vašem estetickém vkusu a omezit vás mohou pouze místní nařízení, pokud se dané lokality týkají.
- Dřevostavba typu bungalov nabízí dostatečně široké možnosti následných úprav a je snadné v ní v budoucnu změnit dispozice.
- Menší bungalov může sloužit jako celkem levné a úsporné řešení rekreačního bydlení. Větší stavba může zase sloužit jako plnohodnotný rodinný dům.
- Každá místnost bungalovu je většinou přímo propojena se zahradou.
- Neodmyslitelnou součástí bungalovu je krytá terasa.
- Stavba bungalovu bývá technicky jednodušší a tím rychleji se můžete nastěhovat.
Typový bungalov Instinkt 1-108
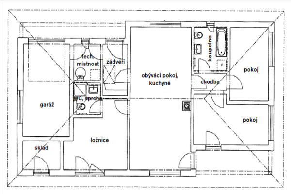
Typový bungalov Instinkt 1-108 nabízí na zastavěné ploše necelých 150 m2 kromě čtyř pokojů a kuchyňského koutu také prostor pro koupelnu, technickou místnost a sklad. Srdcem bungalovu je obývací pokoj s kuchyňským koutem a jídelnou, s pohodlným přístupem přímo na terasu. Součástí domu je navíc garáž.
- Realizace: Haas Fertigbau s.r.o.
- Název projektu: Instinkt 1-108
- Počet podlaží: jednopodlažní
- Konstrukční systém: panelová dřevostavba
- Podlahová plocha (užitná): 108,20 m²
- Zastavěná plocha: 149,10 m²
- Dispozice: 4+kk / 4+1
- Cena hrubé stavby (vč. DPH): 4 160 000 Kč
- Cena dřevostavby na klíč (vč. DPH): 6 286 000 Kč
- Cena včetně základové desky: Ne

Zdroj půdorysu: Haas Fertigbau s.r.o.
Zkušenost majitelů, kteří si tento typový bungalov nechali postavit
Rostislav s Petruší trénovali svoji fyzičku na schodišti do třetího patra bytového domu dlouhá léta, až se jednou pohár naplnil a dozrál čas na nový domov; přízemní a pohodlný. Že bude konstrukčně ze dřeva, bylo jasné jako facka, protože dřevostavba je prý „nejlepší barák".
„Jezdili jsme pravidelně do centra vzorových domů v Brně a nakukovali, co by se nám tak líbilo. Chuť postavit si dřevostavbu rostla. Vlastně nám hned zpočátku padl do oka konkrétní typový dům, ale prozkoumávali jsme dál. Nasbírané zkušenosti ale jen potvrzovaly první volbu. Opět se ukázalo, že co se líbí na první dobrou, je to pravé. Rozhodli jsme se realizovat montovaný dům z panelů, firma byla vybraná a mohli jsme začít ladit konkrétní podobu a detaily. V září jsme podepsali smlouvu a zhruba za šest týdnů bylo možné zahájit realizaci základové desky. Do té doby jsme ale ještě dolaďovali typový projekt a vybírali veškeré vybavení ve vzorkovně – všechno možné od barev stěn po baterie v koupelně. Pár věcí jsme v domě chtěli jinak ale až na pár detailů vnitřní dispozice zůstala téměř stejná jako v původním typovém projektu. Vše je ale podle našich představ a nám se tu krásně bydlí."
Foto: Martin Zeman, Zdroj vizualizací projektu: Haas Fertigbau s.r.o.

Líbí se vám typový bungalov Instinkt? Zašlete dodavateli přímý dotaz!
Dřevostavby Haas, to je tradice a dlouholeté zkušenosti. Na evropském trhu působí 50 let a má na kontě přes 50 000 staveb. Společnost Haas Fertigbau je součástí rodinného koncernu Haas Group, který působí po celé Evropě.











.jpg)
.jpg)
.jpg)
.jpg)
.jpg)
.jpeg)
.jpeg)
.jpeg)
.jpeg)
.jpeg)
.png)
Vytvořeno v xart.cz