Markéta Kristová | Pondělí, 05. prosinec 2022 |
Hledáte moderní dům do třech milionů korun? Nízkoenergetická dřevostavba na klíč je svou velikostí ideální pro bydlení ve dvou nebo jako vejminek pro seniory.
V dnešní době astronomických cen bytů a domů je dřevostavba v řešení all inclusive do tří milionů doslova zázrak. Námi vybraný projekt přízemní typové dřevostavby na klíč vychází na 2 882 800 Kč včetně DPH bez základové desky. Půdorys 9,4 × 6,9 m se hodí i na malý pozemek do příměstské i venkovské zástavby. Dům obložený dřevem bude krásný i na horách, například v podobě rekreačního objektu.
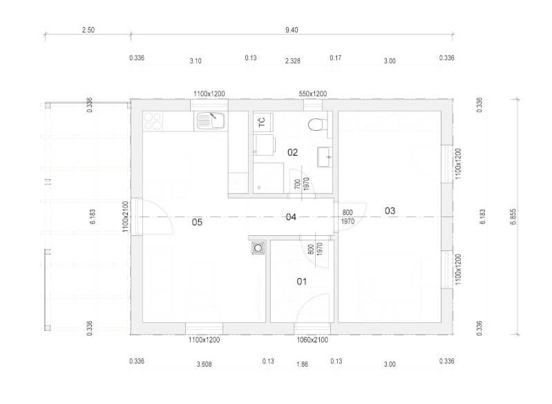
Projekt Carina 52 se zastavěnou plochou téměř 65 m2 je ideální pro mladý pár nebo jako vejminek pro seniory. Stále častěji rovněž hledají bydlení ženy i muži, kteří jsou single, a touží po soukromí, zahradě a svém vlastním prostoru s energiemi a provozem domu pod kontrolou. Takový domov je velmi nenáročný na provoz nejen z hlediska energií, ale také úklidu.
Obývací pokoj s kuchyní na 20 m2 obytné plochy, k tomu pokoj či ložnice 18,55 m2, koupelna, technická místnost a zádveří, tvoří vzhledem k ceně domu velkorysý prostor. V ceně domu je nyní i tepelné čerpadlo, komín s krbovými kamny, příprava na fotovoltaiku, kompozitní extra úsporná okna a exkluzivní klimatická konstrukce ATRIUM DifuTech® Clima Comfort, která udržuje v interiéru po celý rok příjemné klima. Zároveň tepelná izolace zaručuje pohodlné bydlení s velmi nízkými náklady na vytápění.
Technické parametry
- Dispozice: 2+kk
- Zastavěná plocha: 64.44 m2
- Užitná plocha celkem: 51.71 m2
- Typ střechy: sedlová
- Sklon střechy: 30°
- Orientační cena All inclusive: 2 882 800 Kč s DPH (tepelné čerpadlo, komín s krbovými kamny, příprava na fotovoltaiku, úsporná okna, klimatická konstrukce ATRIUM DifuTech® Clima Comfort
- Základová deska v ceně: Ne
- Realizace: ATRIUM, s.r.o.











.jpg)
.jpg)
.jpg)
.jpg)
.jpg)
.jpg)
.jpg)
.jpg)
Vytvořeno v xart.cz