| Název: | LIGHT 02 - dřevostavba na klíč |
| Kategorie: | Projekty dřevostaveb - katalog dřevostaveb na klíč |
| Společnost: | GOOPAN |
| Charakteristika domu: |
|
| Počet podlaží: | jednopodlažní |
| Generačnost: | jednogenerační |
| Konstrukční systém: |
|
| Podlahová plocha (užitná): | 212,00 m² |
Aktuální ceny naleznete na stránkách, případně na dotaz u prezentované společnosti.
Vzdušnost, prostornost a praktičnost. To vše nabízí dům LIGHT 02 velké rodině, která touží po dostatečném osobním prostoru i kvalitně strávených společných chvílích. První patro nám dává vše, co potřebujeme. Velký jednotný prostor propojuje kuchyni, jídelnu a obývací pokoj s přímým vstupem na terasu a výhledem do zahrady. Chodba spojuje čtyři pokoje, z nichž hlavní ložnice má samostatnou šatnu a koupelnu. Ostatní pokoje sdílí další koupelnu. V domě nechybí technická místnost, která skrývá moderní technologie celého domu.
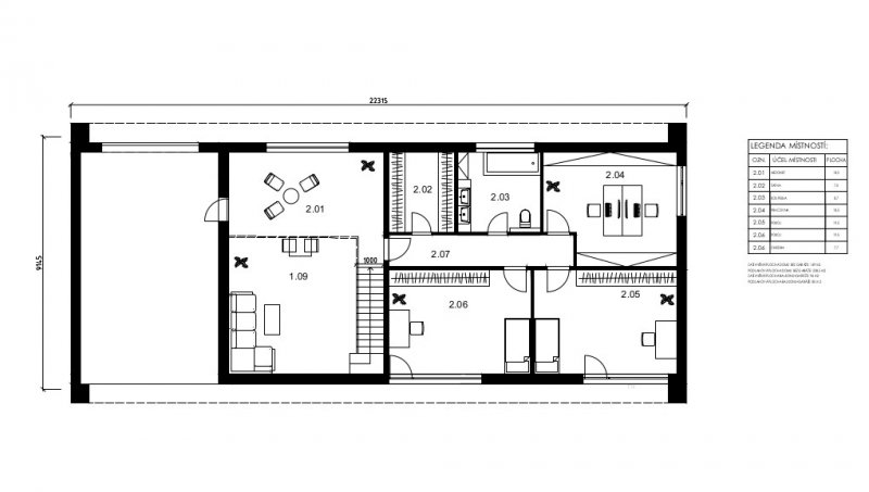
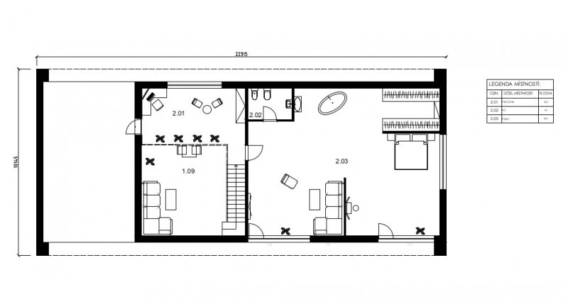
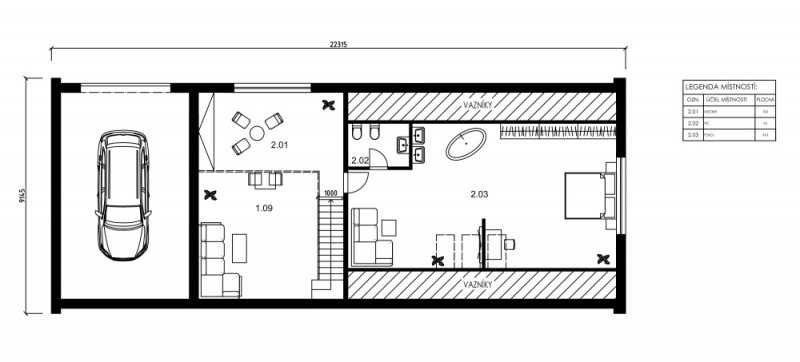
Druhé patro pak můžeme využít dle naší libosti. Jedna z variant nabízí vzdušnou pracovnu a vstup do pokoje, který v jednom netradičně řešeném prostoru propojuje ložnici, obývací pokoj, šatnu a koupelnu.
Další možností je využít patro pro další tři pokoje s koupelnou a šatnou, které se mohou využít jako dětský pokoj, pokoj pro hosty či prostorný home office. Fantazii se meze nekladou.
|
Oznámkujte |
Oblíbené: 0 |
|
Dům se sloupy z douglasky
ARCHCON atelier, s.r.o., DŘEVOSTAVBY BISKUP, s.r.o.
Užitná plocha: 118.44 m²
Dispozice: 4+kk / 4+1
EKONOMY MS 04 - dřevostavba na klíč
MS HAUS s.r.o.
Užitná plocha: 85 m²
Dispozice: 4+kk / 4+1
Nízkoenergetická dřevostavba
EKOPANELY SERVIS s.r.o.
Užitná plocha: 115 m²
Dispozice: 4+kk / 4+1
Futura Freestyle - dřevostavba na klíč
Prodesi I Domesi
Užitná plocha: 107.8 m²
Dispozice: 3+kk / 3+1
Lesníkova roubenka
EKOPANELY SERVIS s.r.o.
Užitná plocha: 260 m²
Dispozice: 5+kk / 5+1
RD Mnichovice
EKOPANELY SERVIS s.r.o.
Užitná plocha: 124.3 m²
Dispozice: 3+kk / 3+1
Chata v Jizerských horách - dřevostavba na klíč
3AE s.r.o.
Moderní roubenka v trampské osadě
OK PYRUS, s.r.o.
Užitná plocha: 117 m²
LUCERN 116 - dřevostavba na klíč
LUCERN dřevostavby s.r.o.
Užitná plocha: 103.1 m²
Dispozice: 4+kk / 4+1
Rodinný dům Tábor - dřevostavba na klíč
ALFAHAUS s.r.o.
Užitná plocha: 137 m²
Dispozice: 4+kk / 4+1
Rodinný dům 307 - dřevostavba na klíč
MARTINICE GROUP s.r.o.
Užitná plocha: 130 m²
Dispozice: 5+kk / 5+1
Ekologická dřevostavba
EKOPANELY SERVIS s.r.o.
Užitná plocha: 128 m²
Dispozice: 3+kk / 3+1
Dům venkovského stylu
EKOPANELY SERVIS s.r.o.
Užitná plocha: 153 m²
Dispozice: 4+kk / 4+1
Optimal 02 - dřevostavba na klíč
PENATUS s.r.o.
Užitná plocha: 124 m²
Dispozice: 4+kk / 4+1
Bennet
KANADSKÉ SRUBY TÁBOR, s.r.o.
Užitná plocha: 177 m²
Dispozice: 5+kk / 5+1
Proč jste na portále DŘEVO&stavby?
Copyright © 2026 Českobrodská 35, 190 12 Praha 9 - Dolní Počernice Kontakt
