| Název: | RD Řeporyje - dřevostavba na klíč |
| Kategorie: | Projekty dřevostaveb - katalog dřevostaveb na klíč |
| Společnost: | 3AE s.r.o. |
| Charakteristika domu: |
|
| Počet podlaží: | jednopodlažní |
| Generačnost: | jednogenerační |
| Konstrukční systém: |
|
| Podlahová plocha (užitná): | 165,00 m² |
| Zastavěná plocha: | 203,00 m² |
| Dispozice: | 7+kk / 7+1 |
| Cena hrubé stavby (vč. DPH): | 6 072 000 Kč Spočítat financování |
| Cena dřevostavby na klíč (vč. DPH): | 13 035 000 Kč Spočítat financování |
| Cena včetně základové desky: | Ano |
Aktuální ceny naleznete na stránkách, případně na dotaz u prezentované společnosti.
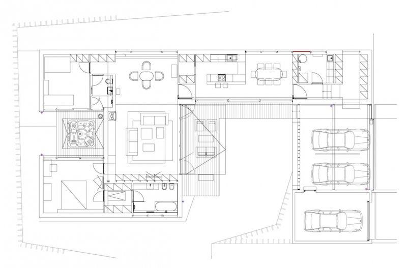
Novostavba rodinného domu je výrazně ovlivněna menším pozemkem, orientací sousedních rodinných domů a terénem. K dosažení pohodlného a intimního života klientů je dům navržen s větším a menším átriem, do kterých jsou orientovány prosklené stěny obytných místností. Pobytová zahrada domu je vytvořena v jeho středu. Na ni navazují hlavní obytné prostory, obývací pokoj a jídelna.
Projekční kancelář SNOVATOVARNA.COM sídlí v Praze a projektuje po celé České republice již od roku 2005. V portfoliu kanceláře najdete návrhy a realizace všech druhů staveb až po rozlehlé soubory či urbanismus. Ve svých návrzích řeší stavbu včetně interiérů a nábytku tak aby dům vytvářel harmonický celek, ve kterém se obyvatelé potkávají a mají možnost aktivně komunikovat. Zároveň ve stavbách studia najdete vždy spoustu praktických úložných prostor. Jejich práce nekončí návrhem, ale vždy se aktivně účastní realizace domu a navrhují nejoptimálnější řešení každého detailu. V roce 2012 kancelář byla jedna z hybatelů vznikajícího projektu typových domů z NOVATOPU NOVAHOME.CZ. Pro vznikající projekt kancelář vytvořila čtyři projekty zajímavých domů s nezaměnitelným designem. Jeden z domů navržených pro NOVAHOME.CZ je projekt domu GRAND, který reprezentuje vrchol filosofie studia. Tento projekt vedl investora projektu domu v Praze k tomu, že se rozhodl oslovit ateliér. Oproti původnímu projektu domu Grand je projekt domu v Praze výrazně ovlivněn menším pozemkem a orientací sousedních rodinných domů a terénem. K dosažení pohodlného a intimního života klientů je dům navržen s větším a menším atriem, do kterých jsou orientovány prosklené stěny obytných místností. Pobytová zahrada domu je vytvořena v jeho středu. Na ni navazují hlavní obytné prostory, obývací pokoj a jídelna.
|
Oznámkujte |
Oblíbené: 0 |
|
Pavo 111 - dřevostavba na klíč
A T R I U M, s.r.o.
Užitná plocha: 111.03 m²
Dispozice: 5+kk / 5+1
Moderní roubenka v trampské osadě
OK PYRUS, s.r.o.
Užitná plocha: 117 m²
Lesníkova roubenka
EKOPANELY SERVIS s.r.o.
Užitná plocha: 260 m²
Dispozice: 5+kk / 5+1
Ekologická dřevostavba
EKOPANELY SERVIS s.r.o.
Užitná plocha: 128 m²
Dispozice: 3+kk / 3+1
Optimal 02 - dřevostavba na klíč
PENATUS s.r.o.
Užitná plocha: 124 m²
Dispozice: 4+kk / 4+1
Dům se sloupy z douglasky
ARCHCON atelier, s.r.o., DŘEVOSTAVBY BISKUP, s.r.o.
Užitná plocha: 118.44 m²
Dispozice: 4+kk / 4+1
Chata v Jizerských horách - dřevostavba na klíč
3AE s.r.o.
Dům venkovského stylu
EKOPANELY SERVIS s.r.o.
Užitná plocha: 153 m²
Dispozice: 4+kk / 4+1
Rodinný dům 307 - dřevostavba na klíč
MARTINICE GROUP s.r.o.
Užitná plocha: 130 m²
Dispozice: 5+kk / 5+1
Bennet
KANADSKÉ SRUBY TÁBOR, s.r.o.
Užitná plocha: 177 m²
Dispozice: 5+kk / 5+1
Futura Freestyle - dřevostavba na klíč
Prodesi I Domesi
Užitná plocha: 107.8 m²
Dispozice: 3+kk / 3+1
Nízkoenergetická dřevostavba
EKOPANELY SERVIS s.r.o.
Užitná plocha: 115 m²
Dispozice: 4+kk / 4+1
RD Mnichovice
EKOPANELY SERVIS s.r.o.
Užitná plocha: 124.3 m²
Dispozice: 3+kk / 3+1
Rodinný dům Tábor - dřevostavba na klíč
ALFAHAUS s.r.o.
Užitná plocha: 137 m²
Dispozice: 4+kk / 4+1
LUCERN 116 - dřevostavba na klíč
LUCERN dřevostavby s.r.o.
Užitná plocha: 103.1 m²
Dispozice: 4+kk / 4+1
Proč jste na portále DŘEVO&stavby?
Copyright © 2026 Českobrodská 35, 190 12 Praha 9 - Dolní Počernice Kontakt
