| Název: | Srubový dům Radek na klíč |
| Kategorie: | Projekty dřevostaveb - katalog dřevostaveb na klíč |
| Společnost: | Haniš srubové domy s.r.o. |
| Charakteristika domu: |
|
| Počet podlaží: | vícepodlažní |
| Generačnost: | jednogenerační |
| Konstrukční systém: |
|
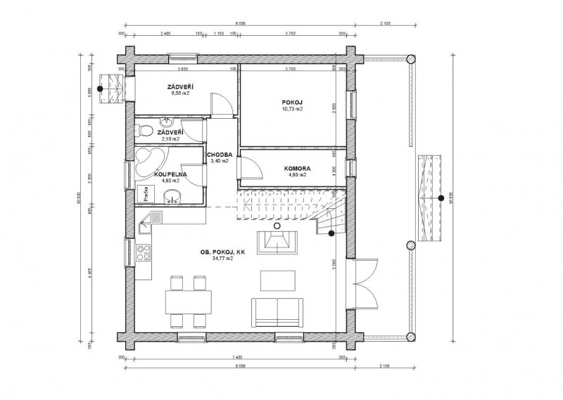
| Podlahová plocha (užitná): | 128,00 m² |
| Zastavěná plocha: | 80,00 m² |
| Místnost navíc: |
|
| Dispozice: | 4+kk / 4+1 |
| Cena hrubé stavby (bez DPH): | 1 429 000 Kč Spočítat financování |
| Cena dřevostavby na klíč (bez DPH): | 4 378 000 Kč Spočítat financování |
| Cena včetně základové desky: | Ne |
Aktuální ceny naleznete na stránkách, případně na dotaz u prezentované společnosti.
Dispozičně je srub na klíč Radek - "Nejkrásnější dřevostavba roku 2007" navržen tak, aby splňoval požadavek bydlení 4 členné rodiny.
Srub na klíč Radek je svými rozměry vhodný na střední stavební parcely od 900 m2. Srubový dům na klíč Radek je svým tradičním vzhledem vhodný do téměř jakékoliv krajiny i se zástavbou.
Srub na klíč Radek je možné vybavit prosklenými štíty, které od podzimu do jara pomáhají vytápět interiér. V letních měsících, kdy je slunce na obloze vysoko, chrání slunečnímu svitu větší štítové přesahy střechy.
NÁŠ TIP - nejoblíbenější stavba - srub na klíč Radek - výborný poměr cena/velikost - dřevostavba roku 2007.
|
Oznámkujte |
Oblíbené: 0 |
|
Optimal 02 - dřevostavba na klíč
PENATUS s.r.o.
Užitná plocha: 124 m²
Dispozice: 4+kk / 4+1
Ekologická dřevostavba
EKOPANELY SERVIS s.r.o.
Užitná plocha: 128 m²
Dispozice: 3+kk / 3+1
LUCERN 116 - dřevostavba na klíč
LUCERN dřevostavby s.r.o.
Užitná plocha: 103.1 m²
Dispozice: 4+kk / 4+1
Futura Freestyle - dřevostavba na klíč
Prodesi I Domesi
Užitná plocha: 107.8 m²
Dispozice: 3+kk / 3+1
Dům se sloupy z douglasky
ARCHCON atelier, s.r.o., DŘEVOSTAVBY BISKUP, s.r.o.
Užitná plocha: 118.44 m²
Dispozice: 4+kk / 4+1
Dům venkovského stylu
EKOPANELY SERVIS s.r.o.
Užitná plocha: 153 m²
Dispozice: 4+kk / 4+1
Pavo 111 - dřevostavba na klíč
A T R I U M, s.r.o.
Užitná plocha: 111.03 m²
Dispozice: 5+kk / 5+1
Rodinný dům Tábor - dřevostavba na klíč
ALFAHAUS s.r.o.
Užitná plocha: 137 m²
Dispozice: 4+kk / 4+1
Chata v Jizerských horách - dřevostavba na klíč
3AE s.r.o.
Nízkoenergetická dřevostavba
EKOPANELY SERVIS s.r.o.
Užitná plocha: 115 m²
Dispozice: 4+kk / 4+1
Bennet
KANADSKÉ SRUBY TÁBOR, s.r.o.
Užitná plocha: 177 m²
Dispozice: 5+kk / 5+1
RD Mnichovice
EKOPANELY SERVIS s.r.o.
Užitná plocha: 124.3 m²
Dispozice: 3+kk / 3+1
Lesníkova roubenka
EKOPANELY SERVIS s.r.o.
Užitná plocha: 260 m²
Dispozice: 5+kk / 5+1
EKONOMY MS 04 - dřevostavba na klíč
MS HAUS s.r.o.
Užitná plocha: 85 m²
Dispozice: 4+kk / 4+1
Rodinný dům 307 - dřevostavba na klíč
MARTINICE GROUP s.r.o.
Užitná plocha: 130 m²
Dispozice: 5+kk / 5+1
Proč jste na portále DŘEVO&stavby?
Copyright © 2026 Českobrodská 35, 190 12 Praha 9 - Dolní Počernice Kontakt
